Möt Nova: vår specialversion av Villa Kalmar

Husstjärna på tillfälligt besök

Villa Kalmar är ett av våra mest sålda och mest älskade hus. Och Nova är inget mindre än Villa Kalmar i en stilig specialutgåva, med stående funkispanel och kort takfot som ger ett härligt modernt och minimalistiskt uttryck. Gillar du? Då gäller det att passa på. Nova är nämligen bara här på tillfälligt besök.

Villa Kalmar Nova

  • Typ 1,5 planshus
  • Boarea 94,9 m²
  • Boarea med inredd övervåning 155,7 m²
  • Antal rum från 2 rum och kök
  • Bygghöjd 3,5 m 
  • Byggarea 109,5 m²

Planlösningar

Planlösning 1 av 5

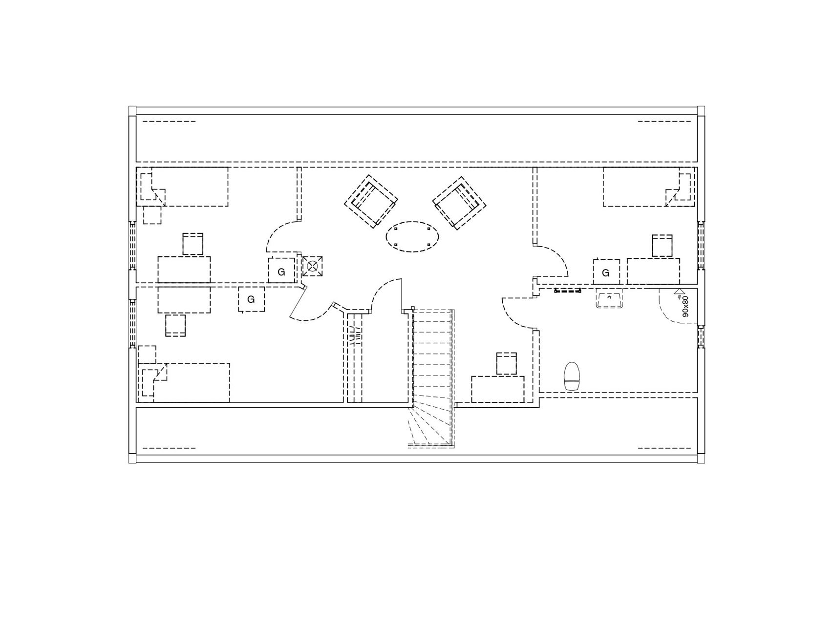
Standard: Vackert, praktiskt och poppis!

På insidan skiljer sig inte Nova från originalet. Kök och vardagsrum till vänster – i husets högra halva ligger sovrum, badrum och klädvård samlade. Här skapas en fin balans mellan umgänge och avskildhet.

Planlösning 2 av 5

Stort vardagsrum: Plats för stora kalas

I det här alternativet väljer du bort sovrum 2 för ett vardagsrum utöver det vanliga. Det stora utrymmet gör det lätt att umgås många – nästan 33 kvm!

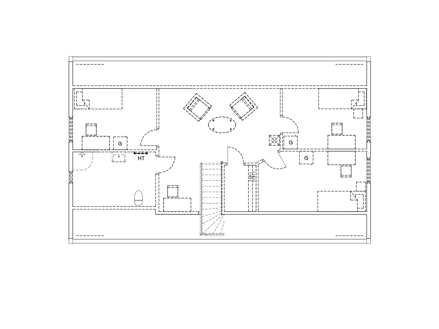
Planlösning 3 av 5

Walk-in-closet i sovrummet: Praktisk vardagslyx

Här får sovrum 2 göra plats för kläder och förvaring. En redig walk-in-closet med ingång från husets Master Bedroom. Vilken vardagslyx!

Planlösning 4 av 5

Oinredd övervåning: Hur vill du ha det?

Som standard får du själv utforma din övervåning, precis som du vill. Gillar du vårt förslag? Då kan du välja det som tillval, se nästa bild.

Planlösning 5 av 5

Inredd övervåning: Klart att flytta in

Som tillval kan du få din övervåning inredd från start. Då får du tre sovrum, ett allrum med arbetshörna, klädkammare och ett badrum. Härliga tider!

Fler planlösningar

1 av 5

Standard: Vackert, praktiskt och poppis!

2 av 5

Stort vardagsrum: Plats för stora kalas

3 av 5

Walk-in-closet i sovrummet: Praktisk vardagslyx

4 av 5

Oinredd övervåning: Hur vill du ha det?

5 av 5

Inredd övervåning: Klart att flytta in

Bildgalleri

1 / 23
Erica Bernardin Säljare, Smålandsvillan

Vi finns här för dig!

Något du undrar över?

Vi svarar så snabbt vi kan

Vill du prata med en huscoach?

Välj en tid som passar dig

Hör av dig till oss!

Vill du bygga nytt?

Hur vill du att vi kontaktar dig?

Boka onlinemöte med en huscoach

Välj en tid och plats som passar dig

Se kalendertider genom att välja var du vill bygga *

Personuppgifter *

Var ska du ställa huset?

Sök på t.ex. adress, område, stad, kommun, län, projekt-/objektnamn

Hej!

Berätta för oss i vilken kommun du vill bygga. Vi kommer anpassa webbplatsen till din valda kommun för att förenkla för dig.