1 / 15
Villa Till salu

Midsommarvägen 18

Ljungby

Boarea

146 m²

Tomtarea

1100 m²

Pris

Från 3 595 000 kr Tidigare pris: 3 795 000 kr

Inflyttningsklar Villa Adelöv i Ljungby

Nu har du chansen att bli ägare till ett inflyttningsklart 1-planshus av modellen Villa Adelöv i Ljungby. Här bor du underhållsfritt i många år framöver, med låg driftskostnad. Du slipper fastighetsavgift i 15 år, och kan få möjlighet till amorteringsfrihet via Nordea. Med oss gör du alltid en trygg bostadsaffär – som OBOS-medlem kan du dessutom få ekonomisk hjälp om försäljningen av ditt nuvarande hem drar ut på tiden.

Härligt enplanshus för hela familjen

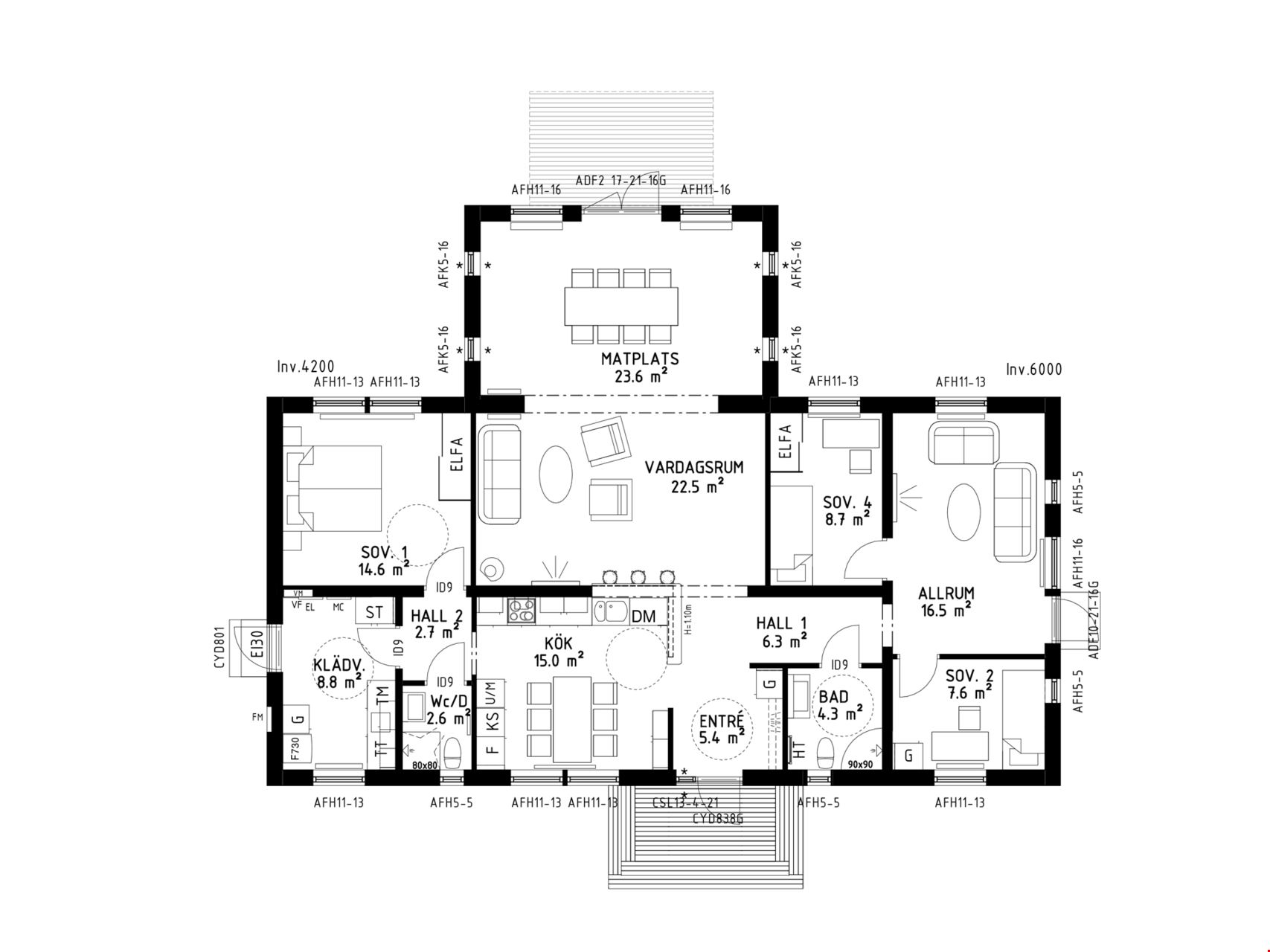
Säg hej till ett ljust och trivsamt enplanshus med fina sociala ytor och gott om plats för privatlivet på 146 härliga kvadratmetrar. Här har vi valt liggande panel och gråa takpannor. Huset är färdigmålat. Inuti finner vi en jättefin planlösning, genomgående hög standard och stilren inredning med ljusa ekparkettgolv samt ljust målade väggar. 

Känn dig som hemma

När du öppnar dörren till Villa Adelöv möts du av en härlig vy genom hela huset och ut mot uteplatsen på baksidan. Här öppnar kök och vardagsrum upp sig direkt från entrén – och du är bjuden. Köket är ljust och trivsamt, här finns både plats för matbord och en trevlig bardisk för både läxläsning och middagsmingel. Från köket når du husets ena privata oas med stort sovrum och husets lilla toalett med dusch. Här finns också tvättstugan, en rejäl sådan med smart groventré.

Vardagsrummet och matplatsen bildar tillsammans en härlig samvaroyta – det blir den perfekta ytan för att samla hela familjen under årets alla festligheter. På andra sidan huset hittar vi sedan ännu en privat avdelning. Kanske blir det här barnen får husera? Den bjuder på två sovrum och ett allrum. I anslutning till detta finns också husets större badrum.

Allt klart från start 

Här behöver du inte krångla med mängder av tillval. Vi har vi valt vårt lyxigaste kök från Vedum med vita vitvaror från Bosch. Badrummet bjuder på kakel och klinker med komfortgolvvärme, inredning från Vedum och en stilren duschhörna – och i tvättstugan väntar både tvättmaskin och torktumlare på att ta hand om din tvätt. Till huset tillhör också en carport och förråd.

Bo barnvänligt i charmiga Ljungby

I familjevänliga Ljungby finns det mesta inom räckhåll. Här bor du med ett bekvämt avstånd till centrum oavsett om du går, cyklar eller kör bil. Trevliga restauranger, mataffärer, apotek, bank, optiker, m.m. ligger inom 2 km från hemmet. I Ljungby finns förskola, skola 0-6 och 1-9 samt gymnasium och universitet. I Ljungby finns också gott om roliga aktiviteter för att hålla hela familjen sysselsatt året om. Motionsspår, cykelleder, bibliotek, lekplatser, fritidsgård, sagomuseum, utomhus- och äventyrsbad är några av alla saker du kan roa dig med när du bor i charmiga Ljungby.

 

Planlösning

Villa-fakta

  • Antal rum 6 rum och kök
  • Pris Från 3 595 000 kr 3 795 000 kr
  • Boarea 146 m²
  • Fastighets­beteckning Sunnö 3
Projektdokument

Kontaktpersoner

Mäklare

Sofie Gustafsson

Oavsett vad som händer utanför dörren kan vi lova dig en trygg resa hela vägen till ditt nya hem. Här berättar vi varför.

Läs mer