Husmodeller
Mycket hus för pengarna är vår filosofi, vare sig du vill bo behändigt eller få gott om plats att växa på. Välj husmodell, bygg online och se ditt drömhus ta form.
Välplanerad planlösning och smarta lösningar.
Öppna planlösningar och genomtänkta ytor.
Inte hela vägen upp i två plan, men nästan!
Moderna hus med rymliga möjligheter en våning upp.
Garage eller carport - Med förråd såklart.
Att bygga hus
Att bygga hus med SmålandsVillan är enkelt, tryggt och smart. Här berättar vi mer om varför det är så, och hur hela husresan går till hos oss.
Så går det till att bygga hus med SmålandsVillan!
Allt du får när du väljer en Smålandsvilla.
Så gör du ditt hus till ditt eget.
Hur ska ditt hus byggas?
Priser, budget, kalkyler och finansiering: You name it!
Därför är det tryggt att bygga med oss.
Hemma hos oss, och hemma hos dig.
Let us help and explain in English!
Inspirationsartiklar
Vill du bredda din kunskap om husbygge eller bara njuta av fantastiska bilder? Då ska du läsa våra inspirerande artiklar.
Att bygga hus är lite av en kunskapssport, men ta det lugnt - vi reder ut allt i våra artiklar.
Våra kunder är inte bara nöjda, de är stilsäkra må ni tro. Följ med hem till dem så får ni se!
Missa inte det senaste, eller det snyggaste. Här samlar vi schyssta bilder direkt från våra husbyggares sociala kanaler
Vi sätter ofta våra hus i fokus, såklart - men man får inte glömma trädgården. Här tipsar vi för fullt om det!
Om oss
Med småländsk finurlighet och smarta lösningar erbjuder SmålandsVillan mycket hus för pengarna. Det har vi gjort sedan 1997. Idag är vi en del av OBOS - en av Nordens största bostadsutvecklare.
Hitta ditt lokala kontor.
Ingen husresa är den andra lik, vi ses hur det passar dig.
En stor och stark koncern betyder trygghet.
Få ett rikare husliv som OBOS-medlem.
Vill du bygga framtidens samhälle och uppfylla bostadsdrömmar?
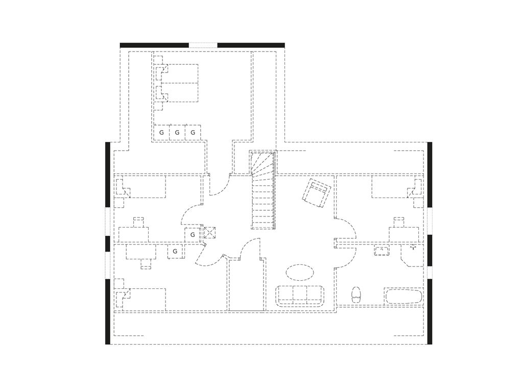
Villa Lekeryd är ett hus med stor potential.
Huset levereras med oinredd övervåning. Detta är ett förslag på hur du kan göra.
Berätta för oss i vilken kommun du vill bygga. Vi kommer anpassa webbplatsen till din valda kommun för att förenkla för dig.