1 / 24
Villa Till salu
Inflyttningsklart  

Sleipners väg 1

Allarp, Skummeslövsstrand

Boarea

88 m² (157 m² med inredd övervåning)

Tomtarea

603 m²

Pris

4 250 000 kr Tidigare pris: 4 450 000 kr

Inflyttningsklar Villa Hjälmseryd i Allarp

I barnvänliga och naturnära Allarp, utanför Laholm har du nu chansen att bli ägare av en nybyggd 1,5-plansvilla med förhöjt väggliv och inredningsklar övervåning. Här bor du underhållsfritt i många år framöver, med låg driftskostnad. Du slipper fastighetsavgift i 15 år, och kan få möjlighet till amorteringsfrihet via Nordea. Med oss gör du alltid en trygg bostadsaffär – som OBOS-medlem kan du dessutom få ekonomisk hjälp om försäljningen av ditt nuvarande hem drar ut på tiden.

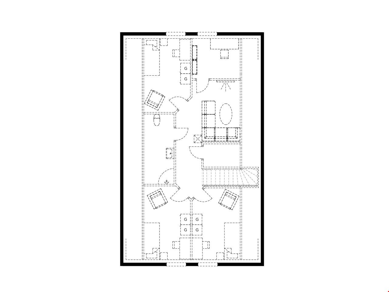
Välkommen till denna villa med 2 rum och kök i Allarp. Det här huset har en härlig genomsikt från entrén vid gaveln mot trädgården på baksidan. Direkt vid hallen tar du dig både in till klädkammaren med plats för skrivbord och det stora sovrummet som bjuder på gott om förvaring och egen walk in closet. Tar du ytterligare ett kliv in så finner du husets badrum som är inrett med kakel och klinker, svart kommod, svart handukstork, vikbara duschväggar och sist men inte minst golvvärme.

Från hallen tar du dig sedan vidare in till det stora vardagsrummet som är förberett med en trappa upp till det övre våningsplanet. I vardagsrummet finns det plats för såväl soffgrupp som matplats. Köket kommer från Vedum och är utrustat med vårt så kallade "lyxkök". Här får du ett kök med en köksö, höga överskåp, dämpade lådor, mjukstängande luckor, högskåp för inbyggd ugn och micro, integrerad diskmaskin, rostfria vitvaror, samt rostfri frihängande fläkt.

Huset ligger på en fin hörntomt på 603 kvm med placering längs en återvändsgata mitt i området. På tomten finns även ett förråd på 5 kvm. 

Huset levereras med oinredd övervåning men med klimatskal så när behovet kommer kan du snabbt och lätt inreda övervåningen och få en boyta om hela 157 kvadratmeter och upp till 7 rum och kök.

Förhöjt väggliv

Med en småländsk finurlighet har vi skapat hus med förhöjt väggliv. Det innebär att väggarna på den inredningsbara övervåningen är lite högre än på långsidorna och taket är lite flackare än i ett vanligt 1,5-planshus. Med andra ord blir rymden och golvytan på den inredningsbara övervåningen lite större men du har fortfarande kvar charmen med snedtak. En fiffig lösning när du vill ha ett stort hus men behöver anpassa dig utifrån begränsningar i detaljplanen. Här får du plats med det du vill och lite till. Precis vad vi menar med mycket hus för pengarna.

Klimatskal gör resan enklare

Övervåningen är inredd med klimatskal. Det innebär att det mest utmanande delen av jobbet med övervåningen, nämligen att lufttäta, isolera och glespanela redan är gjort. Vi har också satt in radiatorer som håller värmen – och gör att du kan räkna med boytan på övervåningen i energiberäkningen redan från början. Ett bra val både för dig och miljön.

Flytta till Allarp

Allarp är en av Sveriges mest attraktiva boplatser. Här finner du milslång strand för salta bad och härliga solnedgångar. Med tidig vår och lång varm höst förlänger du sommaren i båda ändar. I området finner du också härliga strövområden, rid- och vandringsleder samt ett stort antal golf och tennisbanor som lockar både boende och besökare från nära och fjärran.

Notera att bilderna är exempelbilder och att avvikelser kan förekomma.

 

Planlösningar

Planlösning 1 av 2

Planlösning 2 av 2

Fler planlösningar

1 av 2

2 av 2

Villa-fakta

  • Antal rum 2 rum och kök (upp till 7 rum och kök med inredd övervåning)
  • Pris 4 250 000 kr 4 450 000 kr
  • Boarea 88 m² (157 m² med inredd övervåning)
  • Fastighets­beteckning Allarp 2:545

Kontaktpersoner

Mäklare

ELIN SVALA

Oavsett vad som händer utanför dörren kan vi lova dig en trygg resa hela vägen till ditt nya hem. Här berättar vi varför.

Läs mer

Det finns många sätt att hantera sina besparingar på. En investering som du faktiskt kan njuta av varje dag i många år framöver är ditt hem.

Läs mer

Ja, genom vårt samarbete med Nordea har du alla förutsättningar för att hitta en trygg finansieringslösning för ditt hus.

Läs mer