1 / 20
Villa Till salu
Inflyttningsklart  

Korallvägen 3

Ronneby

Boarea

88 m²

Tomtarea

773 m²

Pris

Från 3 749 000 kr Tidigare pris: 4 200 000 kr

Bo havsnära i nybyggd Villa Hjälmseryd i vackra Ekenäs

Nu kan du snart flytta in i ett nybyggt hus med förhöjt väggliv i vackra Ekenäs utanför Ronneby. Här bor du underhållsfritt i många år framöver, med låg driftskostnad. Du slipper fastighetsavgift i 15 år, och kan få möjlighet till amorteringsfrihet via Nordea. Med oss gör du alltid en trygg bostadsaffär – som OBOS-medlem kan du dessutom få ekonomisk hjälp om försäljningen av ditt nuvarande hem drar ut på tiden.

Drömvillan som växer med familjens behov

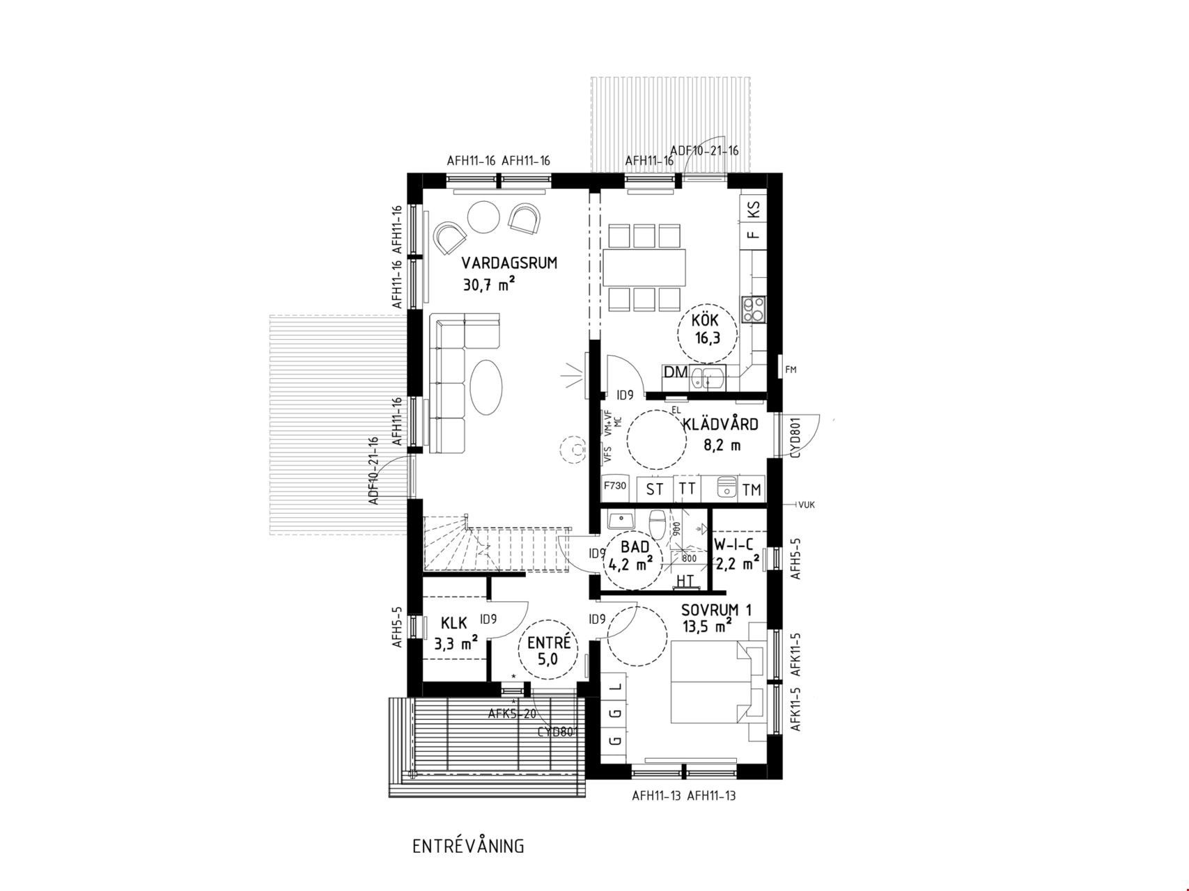
Välkommen till denna villa om 88 välplanerade kvadratmeter med 2 rum och kök i Ekenäs. Det här huset har en härlig genomsikt från entrén vid gaveln mot trädgården på baksidan. Direkt vid hallen tar du dig både in till klädkammaren med plats för skrivbord och det stora sovrummet som bjuder på gott om förvaring och egen walk in closet. Tar du ytterligare ett kliv in så finner du husets badrum. Från hallen tar du dig sedan vidare in till det stora vardagsrummet som är förberett med en trappa upp till det övre våningsplanet. I vardagsrummet finns det plats för såväl soffgrupp som matplats.

Känn dig som hemma!

Köket kommer från Vedum och alla vitvaror kommer från Bosch. Här behöver du inte krångla med mängder av tillval. Badrummen bjuder på kakel och klinker med komfortgolvvärme, inredning från Vedum och en stilren duschhörna – och i tvättstugan väntar både tvättmaskin och torktumlare på att ta hand om din tvätt.

På tomten kommer det anläggas gräsmatta och hårdgjorda gångytor. Till huset hör även ett garage.

Bo vackert och havsnära i Ekenäs

Ekenäs ligger ca 6 kilometer utanför Ronneby. Här bor du med havet och naturen runt knuten, samtidigt som du har nära till alla bekvämligheter i Ronneby. Här finns aktiviteter för stora och små. I närheten ligger både en fin golfbana, båthamn och badplats. Bara en kort bilresa bort kommer du till Ronneby Brunn där du kan avnjuta ett skönt bad eller spa. Gillar du att cyklar tar du dig på 15 minuter in till centrala Ronneby. Föredrar du att åka kollektivt så finns en busshållplats bara 100 meter bort.

Du pendlar smidigt till både Ronneby och Karlskrona.

Välkommen att anmäla ditt intresse!

Planlösning

Villa-fakta

  • Antal rum 2 rum och kök
  • Pris Från 3 749 000 kr 4 200 000 kr
  • Boarea 88 m²
  • Fastighets­beteckning Droppemåla 1:251

Kontaktpersoner

Mäklare

Fredrik Sandén

Oavsett vad som händer utanför dörren kan vi lova dig en trygg resa hela vägen till ditt nya hem. Här berättar vi varför.

Läs mer