Prisindikation
Pris inflyttningsklart från
från 2 174 500 kr
Pris inflyttningsklart från
från 2 174 500 kr
I eleganta Villa Eksjö lever du det goda livet på en ljus och trivsam entrévåning med rum får både umgänge och egentid i två sovrum. Sedan kan du växla upp till hela sju rum och kök när du inreder övervåningen. Där uppe får du både gott om golvyta och mysiga snedtak tack vare förhöjt väggliv.
Villa Eksjö välkomnar dig med fin utsikt rakt genom huset. Det här fina huset är uppdelat i två oaser, dels den sociala med en ljus och trivsam öppen planlösning för kök och vardagsrum, dels den privata där du har två sovrum som standard. Men Villa Eksjö erbjuder också flera fina planlösningsalternativ: du kan till exempel välja bort det mindre sovrummet och istället få ett större vardagsrum – eller göra om det till en storslagen walk-in-closet.
Självklart har Villa Eksjö även rum för det praktiska i tillvaron, som ett fint badrum och ett superpraktiskt klädvårdsrum med egen entré. Och sedan, när du är redo att inreda din övervåning, då händer det grejer... Som standard inreder du den precis som du vill – och när du vill. Som tillval kan du få den inredd från start – med tre sovrum, badrum, klädkammare och allrum med kontorshörna. Valet är ditt!
När du väljer ett av våra 1,5- eller 2-planshus börjar du med ett färdigt boende på entréplan. Övervåningen står redo för framtida drömmar – när du själv är redo.
Läs merPlanlösning 1 av 5
Kök och vardagsrum till vänster – i husets högra halva ligger sovrum, badrum och klädvård samlade. Här skapas en fin balans mellan umgänge och avskildhet.
Planlösning 2 av 5
I det här alternativet väljer du bort sovrum 2 för ett vardagsrum utöver det vanliga. Det stora utrymmet gör det lätt att umgås många – nästan 33 kvm!
Planlösning 3 av 5
Här får sovrum 2 göra plats för kläder och förvaring. En rymlig walk-in-closet med ingång från husets Master Bedroom. Något vi väl alla drömmer om?
Planlösning 4 av 5
Som standard får du själv forma din övervåning, du inreder när och hur du vill. Gillar du vårt förslag? Då kan du välja det som tillval, se nästa bild.
Planlösning 5 av 5
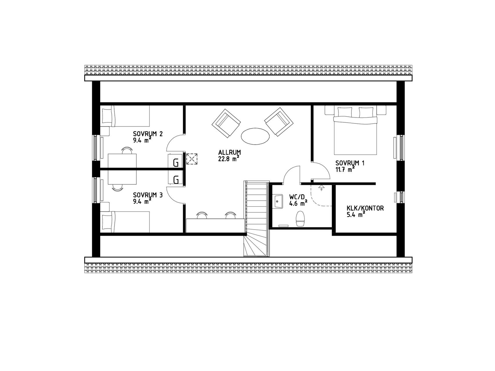
Som tillval kan du få din övervåning helt klar från start. Då får du tre sovrum, det största med lyxig klädkammare – eller hemmakontor – plus allrum med arbetshörna och badrum. Hur fint?
Gillar du denna planlösning?
Den går att få i flera av våra andra husmodeller!
1 av 5
Standard: Modernt, öppet och ljust
2 av 5
Stort vardagsrum: Plats för stora kalas
3 av 5
Walk-in-closet i sovrummet: Praktisk vardagslyx
4 av 5
Övervåningsförslag: Så här kan det se ut
5 av 5
Inredd övervåning: färdigt för inflyttning
Nyfiken och vill veta mer?
Utforska alla våra husmodeller bekvämt hemma i soffan. I brevlådan inom några dagar!
Vad ditt hus kostar beror på vad och var du vill bygga. Hör av dig, så fixar vi en detaljerad kalkyl för just ditt drömhus.
En nybyggd Smålandsvilla är en energisnål villa. Här kan du få ett hum om energiförbrukningen i ditt drömhus just där du tänker bygga. Fyll bara i din kommun.
Energianvändning
(värme & varmvatten)Total energianvändning*
(inklusive hushållsel)Förbrukningen av hushållsel brukar uppskattas till mellan 4000-6000 kWh/år beroende på storlek av hus, antal personer i familjen och levnadsvanor. Vår uträkning följer Boverkets föreskrifter och allmänna råd (2016:12) om fastställande av byggnadens energianvändning vid normalt brukande och ett normalår: 30 kWh per kvadratmeter uppvärmd yta i huset för att få fram uppskattat antal kWh/år.
Bokstaven visar husets energiklass. Energiklassen (A-G) avgörs av byggnaders energiprestanda, uttryckt i primärenergital. Energiklass A står för den lägsta energianvändningen och G för den högsta. Ett hus där energiprestandan uppfyller kraven som ställs på ett nybyggt hus idag får energiklass C eller bättre.
Sök på t.ex. adress, område, stad, kommun, län, projekt-/objektnamn
Ta kontakt med en av våra säljare så hjälper vi er vidare. Det kostar inget alls att boka ett möte. Vill du fundera lite själv och bilda dig en uppfattning om hur du vill att ditt hus ska se ut: besök våra villavisningar runt om i landet. Du kan också testa att bygga ditt drömhus i Husbyggaren. Här kan du enkelt bygga ditt hus online och se vad det kostar innan du får offert. Ett annat tips är att gå vår Husbyggarskola, där får du lära dig allt om hur husresan med SmålandsVillan går till.
Hur lång tid det tar beror till stor del på tomten. Ska det sökas förhandsbesked? Behöver tomten avstyckas? Blir bygglovsbeslutet överklagat? Generellt sett brukar det ta runt 10-14 månader från start till mål, förutsatt att allt flyter på som det ska. Har du ännu mer bråttom hem? Kolla in våra Flyttklara hus.
Vad själva huset kostar kan du få reda på genom att testa Husbyggaren. Där kan du enkelt bygga det hus du vill ha, testa olika tillval, och se vad det kostar. Men vad just ditt husbygge kommer att kosta i sin helhet varierar från kommun till kommun. Vissa kostnader finns alltid med, som kostnad för kontrollansvarig, bygglov och anslutningsavgifter. Sedan handlar det också om hur mycket jobb som krävs på din tomt. För att ta reda på exakt vad just ditt husbygge kostar hjälper din säljare dig att ta fram en produktionskostnadskalkyl.
Du kan ändra och påverka mycket i din Smålandsvilla. Konceptet med SmålandsVillan är att vi bygger våra volymer i fabrik, detta gör att vi är väldigt effektiva och är prisvärda, men det innebär också att vi inte kan göra ändringar som till exempel flytta eller ta bort fönster eller göra ett rum större. Däremot kan du ändra på nästan all fast inredning och sätta din egen prägel med hjälp av våra olika tillval.
Det finns ett alternativ som vi kallar målningsförberett där du gör en del av arbetet invändigt själv och får ett avdrag på huspriset. När du väljer ett 1,5- eller 2-planshus från SmålandsVillan väljer du också själv när och hur du inreder din övervåning.
Vi brukar räkna med 15 procent av huspriset men det kan variera beroende på dina förutsättningar. I samarbete med Nordea erbjuder vi förmånliga lånealternativ för att säkra din finansiering och göra verklighet av din dröm. Läs gärna mer om hur Nordea kan hjälpa dig hem.
Berätta för oss i vilken kommun du vill bygga. Vi kommer anpassa webbplatsen till din valda kommun för att förenkla för dig.