Prisindikation
Pris inflyttningsklart från
från 2 086 300 kr
Pris inflyttningsklart från
från 2 086 300 kr
I Villa Kalmar bjuder entrévåningen på perfekt balans mellan umgänge och egentid – och övervåningen blir precis vad du gör den till. Med inredd övervåning kan Villa Kalmar rymma hela 7 rum och kök.
Villa Kalmar är en av våra mest omtyckta husmodeller bland 1,5-planshusen. Den ljusa, öppna planlösningen mellan vardagsrum och kök i husets ena planhalva brukar uppskattas lite extra. Inte konstigt alls, det är en härlig yta som ger en känsla av rymd och gör det lätt att umgås – både vid middagar och läxläsning.
Husets andra halva bjuder på två trivsamma sovrum som standard. Om du nöjer dig med ett här nere kan du istället få ett ännu större vardagsrum – eller lyxa till sovrummet med en rejäl walk-in-closet. Här finns också praktiska godbitar som det fina badrummet och klädvårdsrummet med groventré som blir perfekt för leriga stövlar – eller kanske tassar? På övervåningen får dina önskningar fritt spelrum, om du vill. Eller så väljer du att få den inredd från start – med tre sovrum, allrum, badrum och klädkammare – som tillval. Du väljer din Villa Kalmar.
När du väljer ett av våra 1,5- eller 2-planshus börjar du med ett färdigt boende på entréplan. Övervåningen står redo för framtida drömmar – när du själv är redo.
Läs merPlanlösning 1 av 5
Kök och vardagsrum till vänster – i husets högra halva ligger sovrum, badrum och klädvård samlade. Här skapas en fin balans mellan umgänge och avskildhet.
Planlösning 2 av 5
I det här alternativet väljer du bort sovrum 2 för ett vardagsrum utöver det vanliga. Det stora utrymmet gör det lätt att umgås många – nästan 33 kvm!
Planlösning 3 av 5
Här får sovrum 2 göra plats för kläder och förvaring. En redig walk-in-closet med ingång från husets Master Bedroom. Vilken vardagslyx!
Planlösning 4 av 5
Som standard får du själv utforma din övervåning, precis som du vill. Gillar du vårt förslag? Då kan du välja det som tillval, se nästa bild.
Planlösning 5 av 5
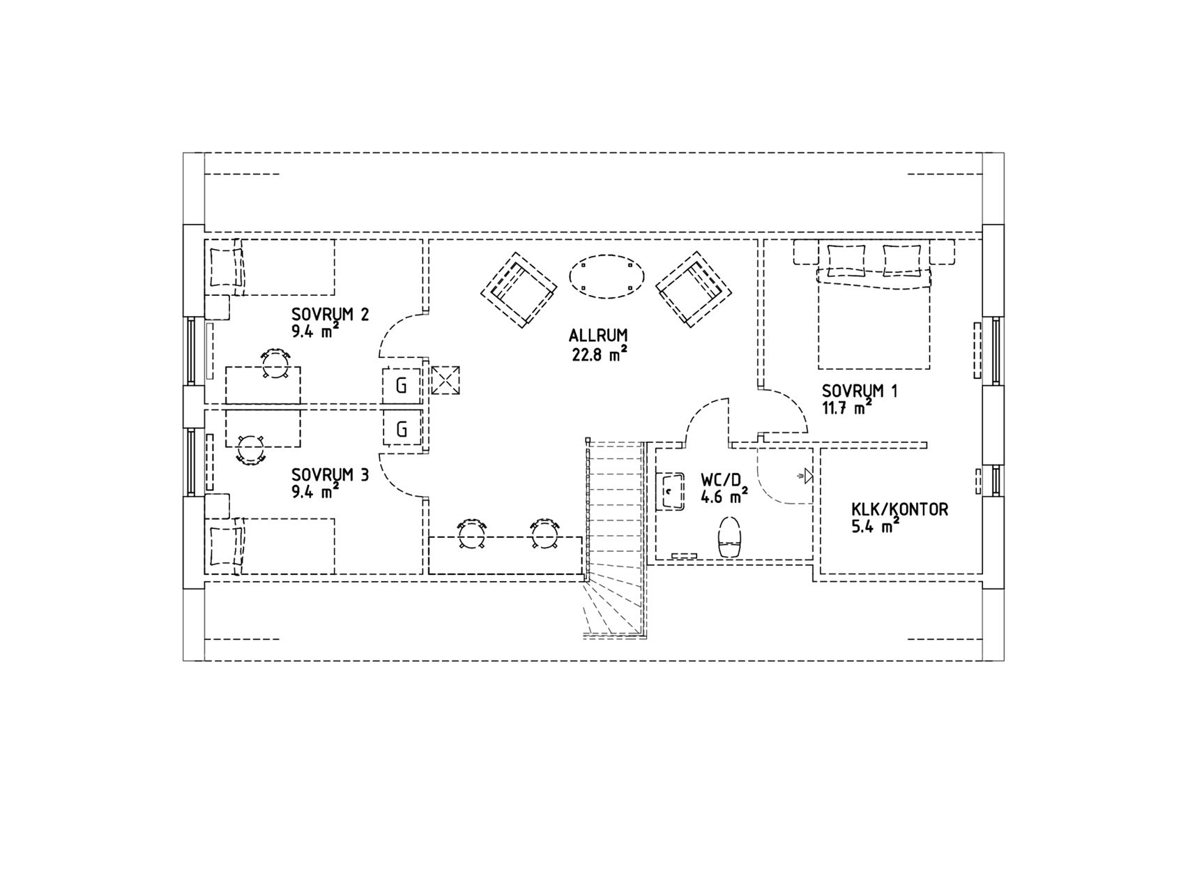
Som tillval kan du få din övervåning klar från start. Då får du tre sovrum, det största med lyxig klädkammare – eller hemmakontor – plus allrum med arbetshörna och badrum. Härliga tider!
Gillar du denna planlösning?
Den går att få i flera av våra andra husmodeller!
1 av 5
Standard: Vackert, praktiskt och poppis!
2 av 5
Stort vardagsrum: Plats för stora kalas
3 av 5
Walk-in-closet i sovrummet: Praktisk vardagslyx
4 av 5
Övervåningsförslag: Hur vill du ha det?
5 av 5
Inredd övervåning: klart att flytta in
Just nu erbjuder vi Villa Kalmar i ett specialutförande med funkispanel och kort takfot.
Just nu erbjuder vi Villa Kalmar i ett specialutförande med funkispanel och kort takfot.
söndag 1 feb
12:00-15:00
Frölunda Smedjegata 4, Husknuten, Göteborg
söndag 15 feb
12:00-15:00
Frölunda Smedjegata 4, Husknuten, Göteborg
söndag 15 feb
13:00-14:00
Runningebacken 20, Lärkhöjden, Ljungskile
söndag 22 feb
12:00-15:00
Frölunda Smedjegata 4, Husknuten, Göteborg
Nyfiken och vill veta mer?
Utforska alla våra husmodeller bekvämt hemma i soffan. I brevlådan inom några dagar!
Vad ditt hus kostar beror på vad och var du vill bygga. Hör av dig, så fixar vi en detaljerad kalkyl för just ditt drömhus.
En nybyggd Smålandsvilla är en energisnål villa. Här kan du få ett hum om energiförbrukningen i ditt drömhus just där du tänker bygga. Fyll bara i din kommun.
Energianvändning
(värme & varmvatten)Total energianvändning*
(inklusive hushållsel)Förbrukningen av hushållsel brukar uppskattas till mellan 4000-6000 kWh/år beroende på storlek av hus, antal personer i familjen och levnadsvanor. Vår uträkning följer Boverkets föreskrifter och allmänna råd (2016:12) om fastställande av byggnadens energianvändning vid normalt brukande och ett normalår: 30 kWh per kvadratmeter uppvärmd yta i huset för att få fram uppskattat antal kWh/år.
Bokstaven visar husets energiklass. Energiklassen (A-G) avgörs av byggnaders energiprestanda, uttryckt i primärenergital. Energiklass A står för den lägsta energianvändningen och G för den högsta. Ett hus där energiprestandan uppfyller kraven som ställs på ett nybyggt hus idag får energiklass C eller bättre.
Sök på t.ex. adress, område, stad, kommun, län, projekt-/objektnamn
Ta kontakt med en av våra säljare så hjälper vi er vidare. Det kostar inget alls att boka ett möte. Vill du fundera lite själv och bilda dig en uppfattning om hur du vill att ditt hus ska se ut: besök våra villavisningar runt om i landet. Du kan också testa att bygga ditt drömhus i Husbyggaren. Här kan du enkelt bygga ditt hus online och se vad det kostar innan du får offert. Ett annat tips är att gå vår Husbyggarskola, där får du lära dig allt om hur husresan med SmålandsVillan går till.
Hur lång tid det tar beror till stor del på tomten. Ska det sökas förhandsbesked? Behöver tomten avstyckas? Blir bygglovsbeslutet överklagat? Generellt sett brukar det ta runt 10-14 månader från start till mål, förutsatt att allt flyter på som det ska. Har du ännu mer bråttom hem? Kolla in våra Flyttklara hus.
Vad själva huset kostar kan du få reda på genom att testa Husbyggaren. Där kan du enkelt bygga det hus du vill ha, testa olika tillval, och se vad det kostar. Men vad just ditt husbygge kommer att kosta i sin helhet varierar från kommun till kommun. Vissa kostnader finns alltid med, som kostnad för kontrollansvarig, bygglov och anslutningsavgifter. Sedan handlar det också om hur mycket jobb som krävs på din tomt. För att ta reda på exakt vad just ditt husbygge kostar hjälper din säljare dig att ta fram en produktionskostnadskalkyl.
Du kan ändra och påverka mycket i din Smålandsvilla. Konceptet med SmålandsVillan är att vi bygger våra volymer i fabrik, detta gör att vi är väldigt effektiva och är prisvärda, men det innebär också att vi inte kan göra ändringar som till exempel flytta eller ta bort fönster eller göra ett rum större. Däremot kan du ändra på nästan all fast inredning och sätta din egen prägel med hjälp av våra olika tillval.
Det finns ett alternativ som vi kallar målningsförberett där du gör en del av arbetet invändigt själv och får ett avdrag på huspriset. När du väljer ett 1,5- eller 2-planshus från SmålandsVillan väljer du också själv när och hur du inreder din övervåning.
Vi brukar räkna med 15 procent av huspriset men det kan variera beroende på dina förutsättningar. I samarbete med Nordea erbjuder vi förmånliga lånealternativ för att säkra din finansiering och göra verklighet av din dröm. Läs gärna mer om hur Nordea kan hjälpa dig hem.
Berätta för oss i vilken kommun du vill bygga. Vi kommer anpassa webbplatsen till din valda kommun för att förenkla för dig.