Youtube video preview
1 / 8
Villa Såld

Villa 19 - Eneboslingan 22

Alster, Karlstad

Tillhör projekt

Kv Alster
Boarea 81 m² (163 m² med inredd övervåning)
Tomtarea 1376 m²

Flyttklar Villa Markaryd i Alster

Mitt i den värmländska naturen, med lika nära till sköna skogspromenader som svalkande dopp har du nu möjlighet att köpa en nybyggd SmålandsVilla. Här bor du underhållsfritt i många år framöver, med låg driftskostnad. Du slipper fastighetsavgift i 15 år, och kan få möjlighet till amorteringsfrihet via Nordea. Med oss gör du alltid en trygg bostadsaffär – som OBOS-medlem kan du dessutom få ekonomisk hjälp om försäljningen av ditt nuvarande hem drar ut på tiden

Drömvillan som växer med familjens behov

Välkommen till det stora huset i lilla formatet. Här inleder du huslivet i 2 rum och kök på dryga 81 kvadratmeter. När det behövs inreder du övervåningen och utökar enkelt till 7 rum och kök – och dubblar boytan. Vi har dessutom redan fixat de mest utmanade delarna av jobbet - nämligen att lufttäta, isolera, glespanela. Två radiatorer är även på plats så att du kan ta med övervåningen i energiberäkningen redan från början.

Villa Markaryd bjuder på en välkomnande planlösning, genomgående hög standard och stilren inredning med ljusa ekparkettgolv samt vitmålade väggar. 

Varmt välkommen!

När du kliver in i det här huset ser du rätt ut i trädgården utanför, härligt! Först tar vi köksvägen, in i ett lika trevligt som funktionellt kök där den inbjudande bardisken blir den naturliga medelpunkten både till vardags och vid festligare tillfällen. Köket bjuder också på fina arbetsytor och plats för en trevlig matplats. 

I det stora vardagsrummet ryms såväl matbord som soffgrupp utan problem. Härifrån kliver du också ut på din ljuvliga baksida, en viktig del av huslivet. I andra delen av huset hittar du sedan ett stort sovrum, liksom husets tvättstuga – med smart groventré – och ditt nya, fräscha badrum. Vad ni sedan hittar på uppe på övervåningen är upp till er. Villa Markaryd är huset som verkligen kan växa med familjens behov.

Allt klart från start 

Här behöver du inte krångla med mängder av tillval. Det trevliga köket kommer från Vedum och är utrustat med höga överskåp, dämpade lådor, mjukstängande luckor, inbyggd ugn och mikro i högskåp, rostfria vitvaror och matchande frihängande fläkt. Alla vitvaror kommer från Bosch. Badrummen bjuder på kakel och klinker med komfortgolvvärme, handdukstork, inredning från Vedum och en stilren duschhörna – och i tvättstugan väntar både tvättmaskin och torktumlare på att ta hand om din tvätt. Vi har även sett till att din bil har ett isolerat garage att husera i när den inte används.

Flytta till Alster

I det naturnära och lugna området Alster, strax öster om Karlstad bor du med naturen utanför dörren och med närhet till ett rikt friluftsliv året runt. Samtidigt som du på mindre än 10 minuter tar dig in till centrala Karlstad med bil. Förskola och skola har du på promenadavstånd, likaså Vänern och Alsters Strandbad.

Observera att bilderna är illustrationer som ska ses som vägledande. Avvikelser kan därför förekomma. 

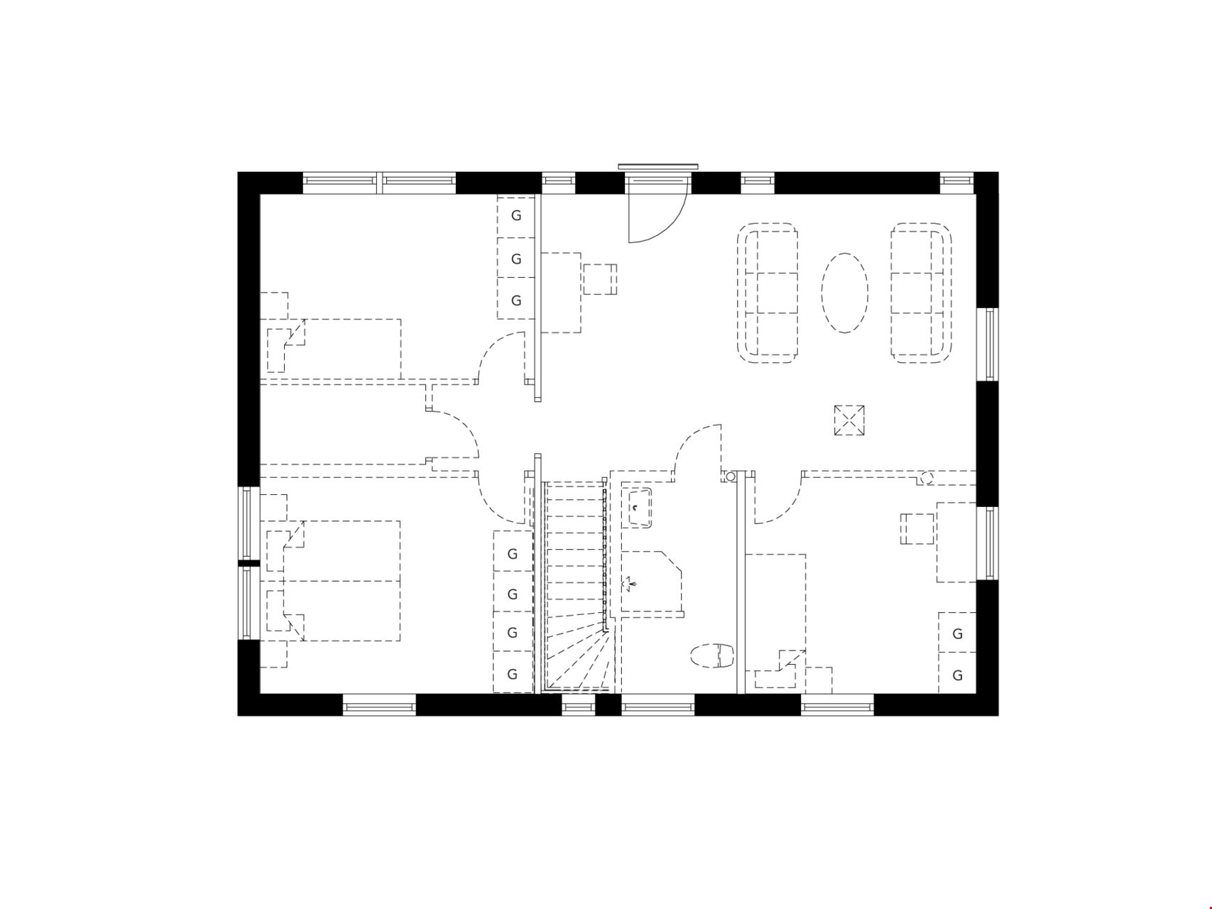
Planlösningar

Planlösning 1 av 2

Planlösning 2 av 2

Fler planlösningar

1 av 2

2 av 2

Villa-fakta

  • Antal rum 2 rum och kök (7 rum och kök med inredd övervåning)
  • Boarea 81 m² (163 m² med inredd övervåning)
  • Tillhör projekt Kv Alster
Projektdokument

Kontaktpersoner

Mäklare

Mikael Brattström

Hitta hem i Kv Alster 

3
Till salu
1
Reserverade
9
Sålda
Objekt Adress Pris Tomtarea Boarea Rum och kök Inflyttning
Till salu
Tomt C Strandviksvägen 17C 1 600 000 kr 2406 m²
Till salu
Tomt A Strandviksvägen 17A 1 600 000 kr 2001 m²
Till salu
Tomt 2 Enebovägen 29 1 600 000 kr 1963 m²
Reserverad
Tomt B Strandviksvägen 17B 1 600 000 kr 2113 m²
Såld
Tomt 13 Eneboslingan 11A 1206 m²
Såld
Tomt 11 Enebovägen 18 1375 m²
Såld
Tomt 10 Enebovägen 20 1565 m²
Såld
Tomt 9 Enebovägen 20A 1195 m²
Såld
Villa 4 Enebovägen 26 1263 m² 95 m² (156 m² med inredd övervåning) 3 rum och kök
Såld
Villa 19 Eneboslingan 22 1376 m² 81 m² (163 m² med inredd övervåning) 2 rum och kök (7 rum och kök med inredd övervåning)
Såld
Villa 12 Eneboslingan 3 2154 m² 146 m² 7 rum och kök
Såld
Villa 17 Eneboslingan 12 2154 m² 95 m² (190 m² med inredd övervåning) 2 rum och kök (8 rum med inredd övervåning)
Såld
Tomt 22 Eneboslingan 28 1499 m²
Scrolla sidled i tabellen för att se alla kolumner

Oavsett vad som händer utanför dörren kan vi lova dig en trygg resa hela vägen till ditt nya hem. Här berättar vi varför.

Läs mer