1 / 9
Inflyttningsklart
Villa Till salu

Hus 11 - Kuskbocksvägen 17

Södra Gunsta, Uppsala

Tillhör projekt

Kv Solterrassen
Tomtarea 975 m²
Pris
5.800.000 kr

Villa Markaryd – redo för inflyttning

Sätt nyckeln i dörren och flytta in i ett hem som redan tänkt på det mesta. Villa Markaryd är inflyttningsklart, praktiskt och byggt med omtanke om både vardag och framtid.

Mycket hus för pengarna

Villa Markaryd bjuder på en smart och välutrustad entrévåning som gör det enkelt att flytta in och känna sig hemma direkt. Här får du ett hem med både stil och funktion, där varje kvadratmeter är genomtänkt – och där du kan sätta din egen prägel, både nu och senare.

*Bilden är enbart vägledande, avvikelser kan förekomma i form av t ex färgsättning mm.

Flytta till Södra Gunsta

Södra Gunsta är känt för sin närhet till skog och vatten och populära rekreationsområden som Fjällnoraområdet, sjön Trehörningen och Vedyxaskogen som alla är välbesökta av uppsalaborna. Båt, bad samt fiskemöjligher finns vid både Fjällnorabadet, Funbosjön och Länna. Vid Fjällnora kan man även hyra kanot och båt och njuta av välplogade skridskobanor vintertid. 

Familjevänligt område med goda kommunikationer

I dag finns det tre förskolor i området samt grundskola i närliggande Funbo som är från förskoleklass till årskurs tre. Området har bra kommunikationer och kollektivtrafiken trafikerar sträckan mot både Uppsala och Almunge. För den som föredrar att cykla finns det en modern cykelväg längsmed vägen. Under sommarsäsongen går också museijärnvägen Lennakatten från Uppsala förbi Gunsta och ända till Faringe.

Välkommen att kontakta oss om du är intresserad!

Notera att bilderna är exempelbilder och att avvikelser kan förekomma. Vi förbehåller oss rätten att justera priser under pågående försäljning.

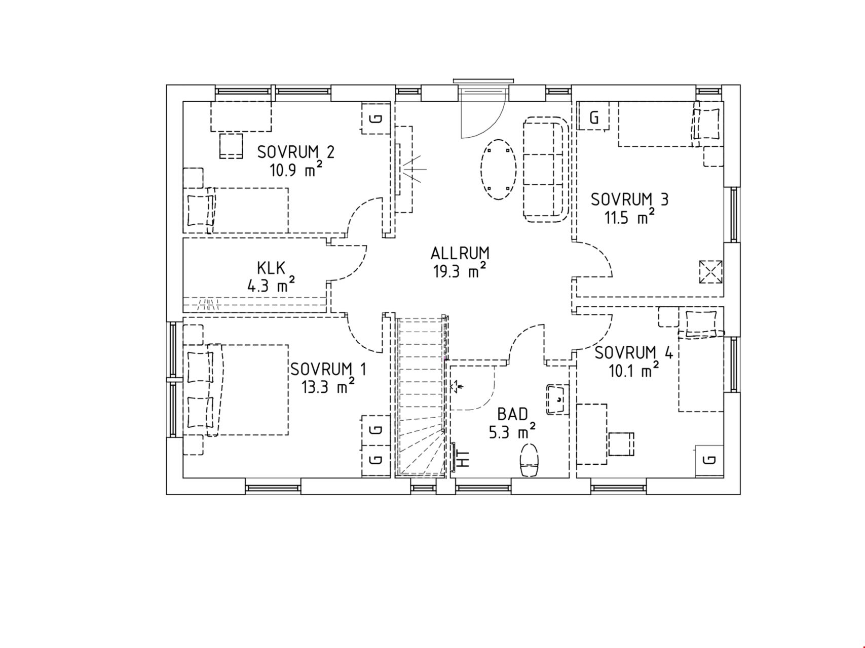
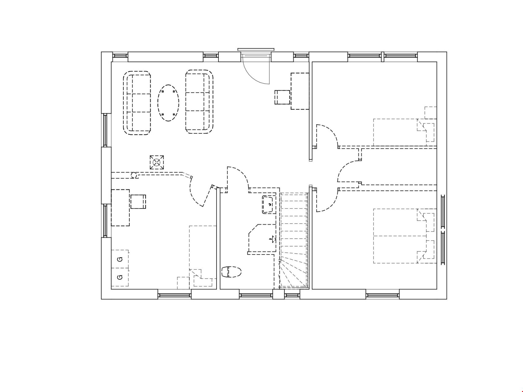
Planlösningar

Planlösning 1 av 3

Planlösning 2 av 3

Planlösning 3 av 3

Fler planlösningar

1 av 3

2 av 3

3 av 3

Villa-fakta

  • Pris 5.800.000 kr
  • Fastighets­beteckning Ärnevi 15:3
  • Tillhör projekt Kv Solterrassen

Uppskattad boendekostnad

kr

Intresseanmälan
Kontantinsats

Skriv hur mycket av dina egna pengar som du vill lägga, minst 15 % av beloppet du köper bostaden för.

Bolåneränta per månad

Om du inte anger en egen ränta använder vi Nordeas 3-månaders snittränta. Se representativt exempel med effektiv ränta för ett bolån hos Nordea längre ned på sidan.

Amortering per månad

Lånar du över 70 % ska du betala tillbaka minst 2 % av lånebeloppet varje år. Är lånet på 50–70 % betalar du tillbaka minst 1 %.

Emil Scherdin Säljare 070-601 15 74 010-434 10 20

Flytta in direkt i en SmålandsVilla!

Intresseanmälan

Fyll i dina uppgifter så återkommer vi till dig.

Upptäck fler hem

i Kv Solterrassen

13
Till salu
5
Reserverade
7
Sålda
Beteckning
Objektstyp
Tomtarea
Boarea
Antal rum
Pris
Inflyttning
Status
Objektstyp Tomt
Tomtarea 1042 m²
Boarea
Antal rum
Pris 1.800.000 kr
Inflyttning
Status
Till salu
Objektstyp Tomt
Tomtarea 1034 m²
Boarea
Antal rum
Pris 1.925.000 kr
Inflyttning
Status
Till salu
Objektstyp Villa
Tomtarea 814 m²
Boarea
Antal rum
Pris 5.650.000 kr
Inflyttning
Inflyttningsklart
Status
Till salu
Objektstyp Villa
Tomtarea 951 m²
Boarea
Antal rum
Pris 5.650.000 kr
Inflyttning
Inflyttningsklart
Status
Till salu
Objektstyp Villa
Tomtarea 829 m²
Boarea
Antal rum
Pris 5.750.000 kr
Inflyttning
Status
Till salu
Objektstyp Tomt
Tomtarea 1090 m²
Boarea
Antal rum
Pris 1.995.000 kr
Inflyttning
Status
Till salu
Objektstyp Tomt
Tomtarea 886 m²
Boarea
Antal rum
Pris 1.925.000 kr
Inflyttning
Status
Till salu
Objektstyp Villa
Tomtarea 975 m²
Boarea
Antal rum
Pris 5.800.000 kr
Inflyttning
Inflyttningsklart
Status
Till salu
Objektstyp Tomt
Tomtarea 1035 m²
Boarea
Antal rum
Pris 1.800.000 kr
Inflyttning
Status
Till salu
Objektstyp Tomt
Tomtarea 1045 m²
Boarea
Antal rum
Pris 2.195.000 kr
Inflyttning
Status
Till salu
Objektstyp Tomt
Tomtarea 1193 m²
Boarea
Antal rum
Pris 1.925.000 kr
Inflyttning
Status
Till salu
Objektstyp Tomt
Tomtarea 1193 m²
Boarea
Antal rum
Pris 1.795.000 kr
Inflyttning
Status
Till salu
Objektstyp Tomt
Tomtarea 1147 m²
Boarea
Antal rum
Pris 1.795.000 kr
Inflyttning
Status
Till salu
Objektstyp Tomt
Tomtarea 1039 m²
Boarea
Antal rum
Pris 1.925.000 kr
Inflyttning
Status
Reserverad
Objektstyp Tomt
Tomtarea 1.056 m²
Boarea
Antal rum
Pris 1.950.000 kr
Inflyttning
Status
Reserverad
Objektstyp Tomt
Tomtarea 1047 m²
Boarea
Antal rum
Pris 1.950.000 kr
Inflyttning
Status
Reserverad
Objektstyp Tomt
Tomtarea 1185 m²
Boarea
Antal rum
Pris 1.795.000 kr
Inflyttning
Status
Reserverad
Objektstyp Villa
Tomtarea 1195 m²
Boarea
Antal rum
Pris
Inflyttning
Status
Reserverad
Objektstyp Tomt
Tomtarea 849 m²
Boarea
Antal rum
Pris
Inflyttning
Status
Såld
Objektstyp Tomt
Tomtarea 1268 m²
Boarea
Antal rum
Pris
Inflyttning
Status
Såld
Objektstyp Villa
Tomtarea 1149 m²
Boarea 88 m² (183 m² med inredd övervåning)
Antal rum 2 rum och kök (7 rum och kök med inredd övervåning)
Pris
Inflyttning
Status
Såld
Objektstyp Villa
Tomtarea 1289 m²
Boarea 95 m² (190 m² med inredd övervåning)
Antal rum 2 rum och kök (7 rum och kök med inredd övervåning)
Pris
Inflyttning
Inflyttningsklart
Status
Såld
Objektstyp Tomt
Tomtarea 1013 m²
Boarea
Antal rum
Pris
Inflyttning
Status
Såld
Objektstyp Tomt
Tomtarea 1037 m²
Boarea
Antal rum
Pris
Inflyttning
Status
Såld
Objektstyp Tomt
Tomtarea 1193 m²
Boarea
Antal rum
Pris
Inflyttning
Status
Såld
Oavsett vad som händer utanför dörren kan vi lova dig en trygg resa hela vägen till ditt nya hem. Här berättar vi varför.
Läs mer
Kanske vet du redan att ett nybyggt hus är ett energisnålt hus? Inte minst när man jämför med äldre villor. Men kan du gissa hur mycket det faktiskt kan skilja?
Kolla här
När träden sågats till virke är det dags för nästa anhalt på resan för din blivande Smålandsvilla: husfabriken i Vrigstad. Så här jobbar vi med hållbarheten där.
Läs mer