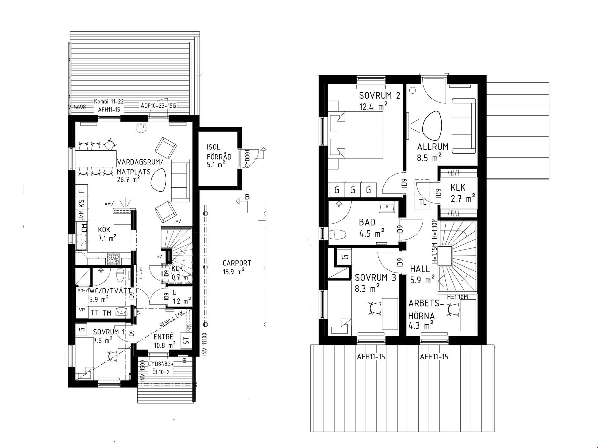
Drömmer du om ett enkelt och trivsamt boende? Nu har du chansen att flytta in i ett av de fem nybyggda kedjehusen på Kv Tennisbanan i vackra Torsviken. Här bor du i ett modernt 2-planshus på 120 välplanerade kvadratmeter, fördelade på sex rum och kök – perfekt för familjen som vill ha gott om utrymme.
Torsviken bjuder på ett idylliskt boende där naturen alltid är nära. Ta en skogspromenad längs slingrande stigar eller ett uppfriskande dopp i lilla Torsjön. Samtidigt har du bekvämt avstånd till Krokek, där du hittar allt från matbutiker och skolor till vårdcentral och pizzerior.
Området har även ett aktivt föreningsliv där du kan engagera dig i fotboll, innebandy, orientering och sportskytte. För dig som gillar utflykter ligger Kolmårdens djurpark bara en kort bilresa bort.
Dessa kedjehus är designade för en smidig och bekväm vardag. På entréplan hittar du hemmets sociala ytor, med öppen planlösning mellan kök och vardagsrum. Här finns även ett sovrum ett badrum med dusch och tvättmaskin.
På övre plan väntar tre rymliga sovrum, ett mysigt allrum samt ytterligare ett badrum. Med smarta lösningar, gott om förvaring och energieffektiva material är detta ett hem där du kan trivas länge.
Här får du inte bara ett smart planerat hem, utan också en rymlig altan på baksidan där du kan njuta av morgonkaffet, duka upp för middagar i kvällssolen eller bara koppla av i en skön loungemöbel.
Från Torsviken tar du dig enkelt till Norrköping på cirka 20 minuter med bil. Perfekt för dig som vill ha en smidig pendling men ändå komma hem till lugnet i naturen.
Välkommen att upptäcka ett bekvämt, prisvärt och modernt boende i Torsviken – här är det lätt att känna sig hemma!
Notera att bilderna är exempelbilder och att avvikelser kan förekomma.
Fyll i dina uppgifter så återkommer vi till dig.
 
                 
                             
                