1 / 14
Villa Kommande

Kv Tennisbanan - Hus 5

Torsviken , Kolmården

Tillhör projekt

Kv Tennisbanan
Boarea 120 m²
Tomtarea 482 m²
Pris
4 150 000 kr

Kedjehus 120 kvm – familjernas favorit med tre sovrum

Här väntar ett hemtrevligt och genomtänkt kedjehus för dig som vill ha både funktion och känsla. Perfekt för middagar, myskvällar och livets alla stunder.

Stig på, för all del!

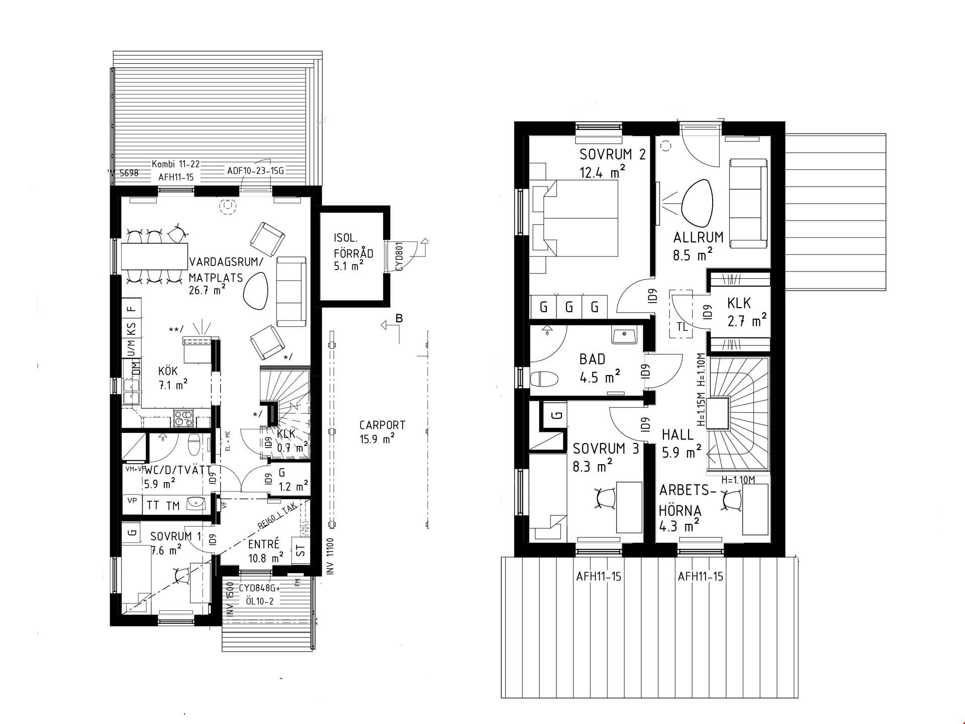
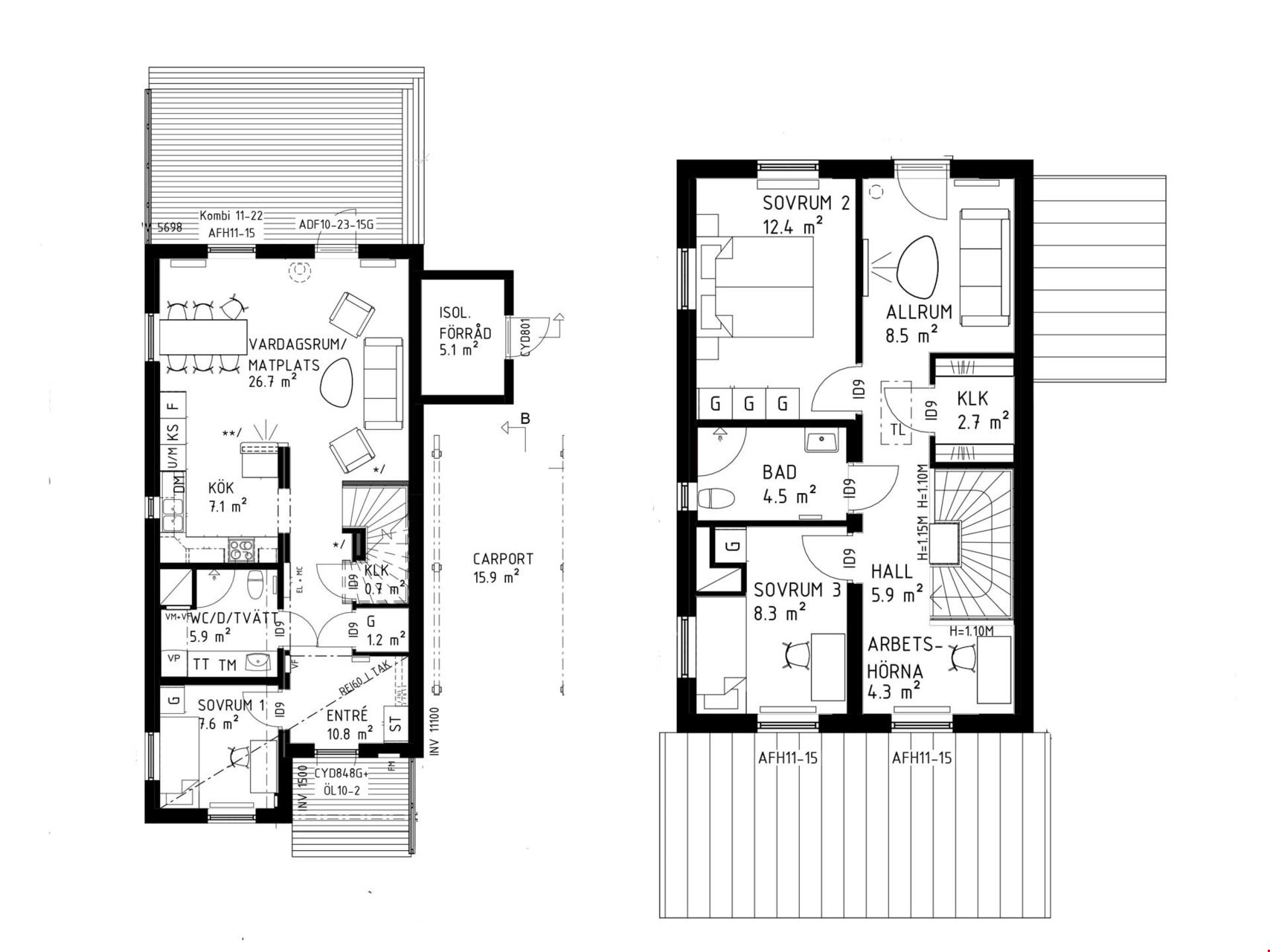
Vi tar först en titt på den trevliga lilla uteplatsen vid entrén som bara väntar på att du ska inreda den. Precis innanför dörren hittar vi sedan ingången till ett av husets sovrum. Ett perfekt krypin för familjens tonåring som värnar om sitt privatliv, långväga gäster, eller kanske för ostört arbete? Här finns också husets ena badrum med WC och dusch, liksom tvättmaskin och torktumlare för bekvämlighetens skull. Ytan under trappan används på ett smart sätt: med ett förråd. Sedan tar en härlig yta vid, med social öppen planlösning mellan kök och vardagsrum.

Ett kök som har allt

Det moderna köket är utrustat för alla tänkbara matlagningsäventyr. Här finns fullstor kyl och frys, ugn, glaskeramikhäll, mikrovågsugn, diskmaskin och rejäla arbetsytor. Köket är helt öppet mot matplatsen och vardagsrummet, vilket skapar en härlig social yta. Lätt att förbereda middagen samtidigt som du är social med familj eller vänner.

Gott om plats för att umgås

Den luftiga vardagsrumsdelen har gott om plats för ett rejält matbord, utan att försaka soffmyset.  Härifrån kliver du direkt ut på din stora altan med trädäck där det finns plats för alla tänkbara trevligheter: från familjefrukostar till släktkalas och grillkvällar med vännerna. Kanske sträcker sig festligheterna ända ut på gräsmattan nedanför?

Rum för avkoppling

Nu fortsätter vi upp för trappan. Här finns husets mer privata utrymmen med två trivsamma sovrum, ett badrum med dusch och WC – och ett inbjudande allrum som passar perfekt för både filmkvällar och tv-spelande. Från allrummet öppnar en balkongdörr upp till en fin fransk balkong. Det rymliga allrummet på övre plan erbjuder flexibilitet och kan, som tillval, omvandlas till ett extra sovrum – perfekt för den växande familjen eller som gästrum.

Här får du:

• 3-4 sovrum, varav ett på nedervåningen

• Trevliga sällskapsytor

• Kök från Vedum

• Vitvaror från Bosch

• 2 badrum, ett med tvättmaskin och torktumlare

• Dubbla uteplatser

• Förråd och carport

Notera att bilderna är exempelbilder och att avvikelser kan förekomma. Vi förbehåller oss rätten att justera priser under pågående försäljning.

Här väntar en enkel husresa där vi tar hand om allt från val av husmodell till finansiering under byggtiden. Du betalar en handpenning när du skriver avtal – och resten vid tillträde.

Läs mer här

Planlösning

Villa-fakta

  • Antal rum 6 rum och kök
  • Pris 4 150 000 kr
  • Boarea 120 m²
  • Fastighets­beteckning Kolmården 1:290
  • Inflyttning Sommaren 2026
  • Tillhör projekt Kv Tennisbanan
Charlotte Sandberg Säljkoordinator 010 434 13 90 010 434 13 90

Kontakta oss om du vill bygga hus med SmålandsVillan

Intresseanmälan

Fyll i dina uppgifter så återkommer vi till dig

Upptäck fler hem

i Kv Tennisbanan

5
Kommande
Beteckning
Objektstyp
Boarea
Antal rum
Pris
Inflyttning
Status
Objektstyp Villa
Boarea 120 m²
Antal rum 5 rum och kök
Pris 4 250 000 kr
Inflyttning
Status
Kommande
Objektstyp Villa
Boarea 120 m²
Antal rum 5 rum och kök
Pris 4 150 000 kr
Inflyttning
Status
Kommande
Objektstyp Villa
Boarea 120 m²
Antal rum 5 rum och kök
Pris 3 995 000 kr
Inflyttning
Status
Kommande
Objektstyp Villa
Boarea 120 m²
Antal rum 6 rum och kök
Pris 3 995 000 kr
Inflyttning
Status
Kommande
Objektstyp Villa
Boarea 120 m²
Antal rum 6 rum och kök
Pris 4 150 000 kr
Inflyttning
Status
Kommande

I Torsviken bor du granne med både skog och vatten. Dels kan du njuta av vackra vyer över Bråviken – eller ta ett dopp i lilla Torsjön. Från din uteplats kan du uppleva årstidernas skiftningar från första parkett. Kanske är det nu du gör slag i saken och skaffar mountainbike, går en svampkurs eller börjar måla akvarell?

Läs hela artikeln

Det finns många sätt att bo på. Du kan hyra en bostad, äga en bostadsrätt eller själv äga din bostad – till exempel ditt eget hus från SmålandsVillan. Är du ny på det här med husägande?

Läs mer

När träden sågats till virke är det dags för nästa anhalt på resan för din blivande Smålandsvilla: husfabriken i Vrigstad. Så här jobbar vi med hållbarheten där.

Läs mer