Smart vinkelhus "Villa Vetlanda"

Fritidshus

Villa Vetlanda

Allt om detta hus

Prisindikation

från 2 476 000 kr

  • Bygghöjd 3,5 m
  • Byggarea 166 m2
  • Boarea 146 m2
Se alla planlösningar
Bygg online

Låt ditt drömhus ta form

Testa Husbyggaren

Bygg online

Bygg Villa Vetlanda som fritidshus

Villa Vetlanda är huset med stora umgängesytor, här ryms det mesta som hör semestern till.

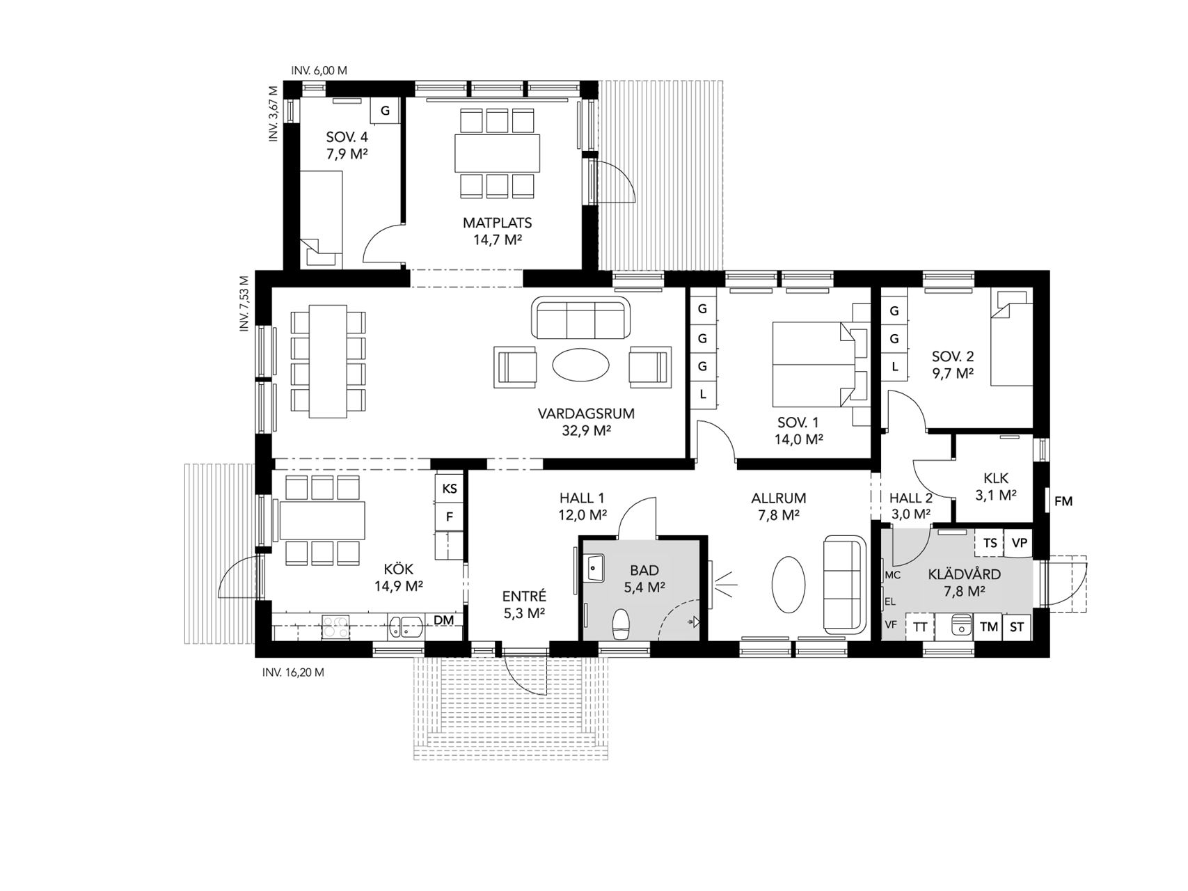
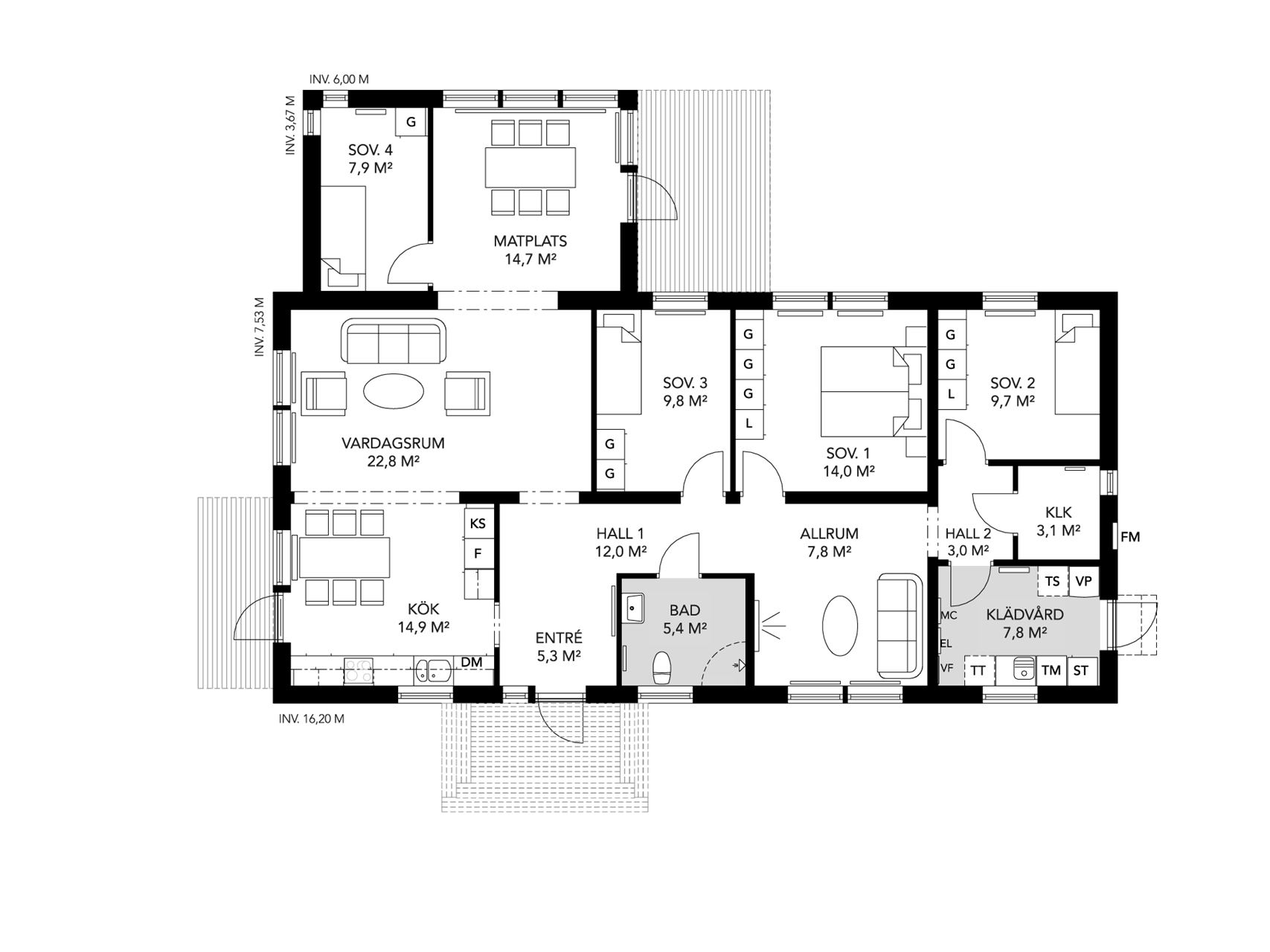
Kök, matplats och vardagsrum öppnar upp sig med hela 59 kvadratmeter. I husets vinkeldel är planlösningen å andra sidan helt öppen från köket och in över det väl tilltagna vardagsrummet på ca 44 m². Vardagsrum, kök och groventré alla egna utgångar.

Huset har tre sovrum i en del av huset men där det ena sovrummet blir lite mer avskilt från det andra. Här finns också möjligheten till ett extra wc som tillval för att komplettera det stora badrummet i huset. 

Fritidshus från SmålandsVillan

Det här huset är ett av våra mest populära hus att bygga som ett permanentboende, men här vill vi också ge dig inspiration för att bygga det här huset som fritidshus. Med anpassningar inom ramen för SmålandsVillans erbjudande kan du få ett prisvärt hus med hög kvalitet och låg energiförbrukning. Kontakta oss nu om du vill bygga fritidshus tillsammans med oss på SmålandsVillan!

Kontakta oss

Vill du veta mer om det här huset?

Hur vill du att vi kontaktar dig?

Planlösningar

Planlösning 1 av 5

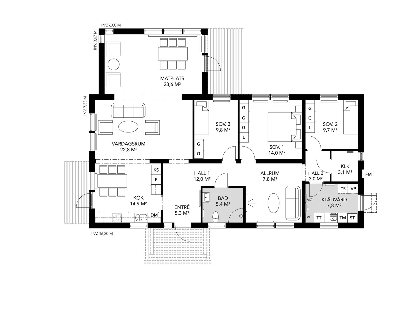
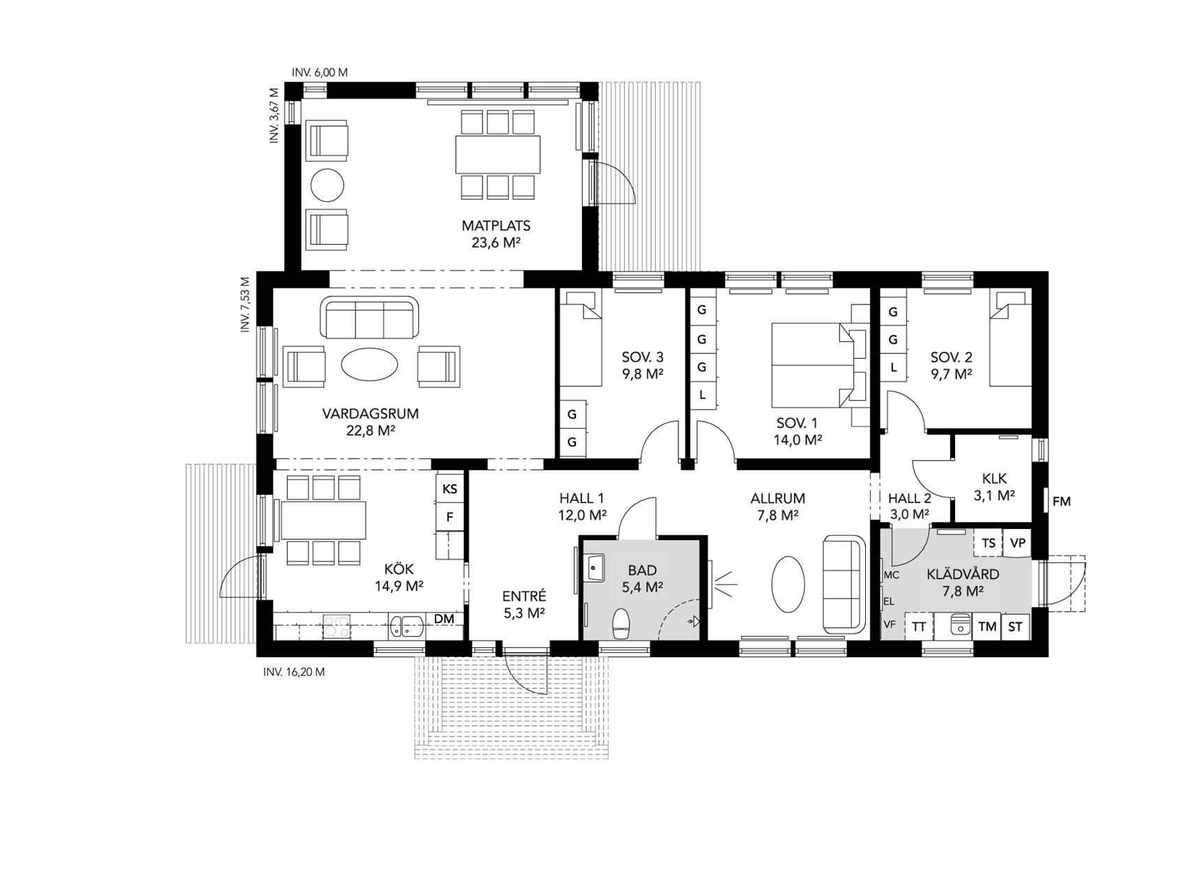
Standard

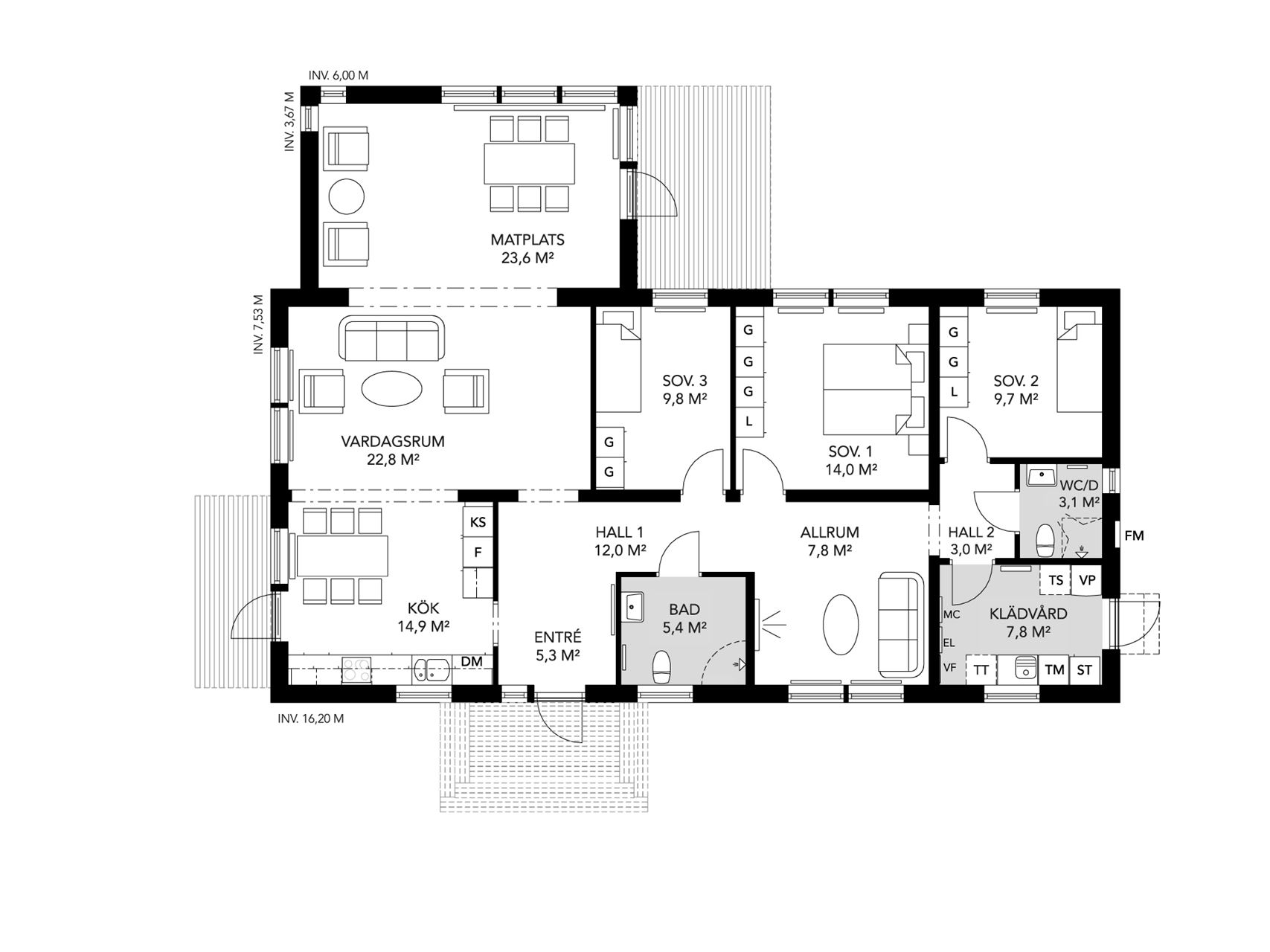
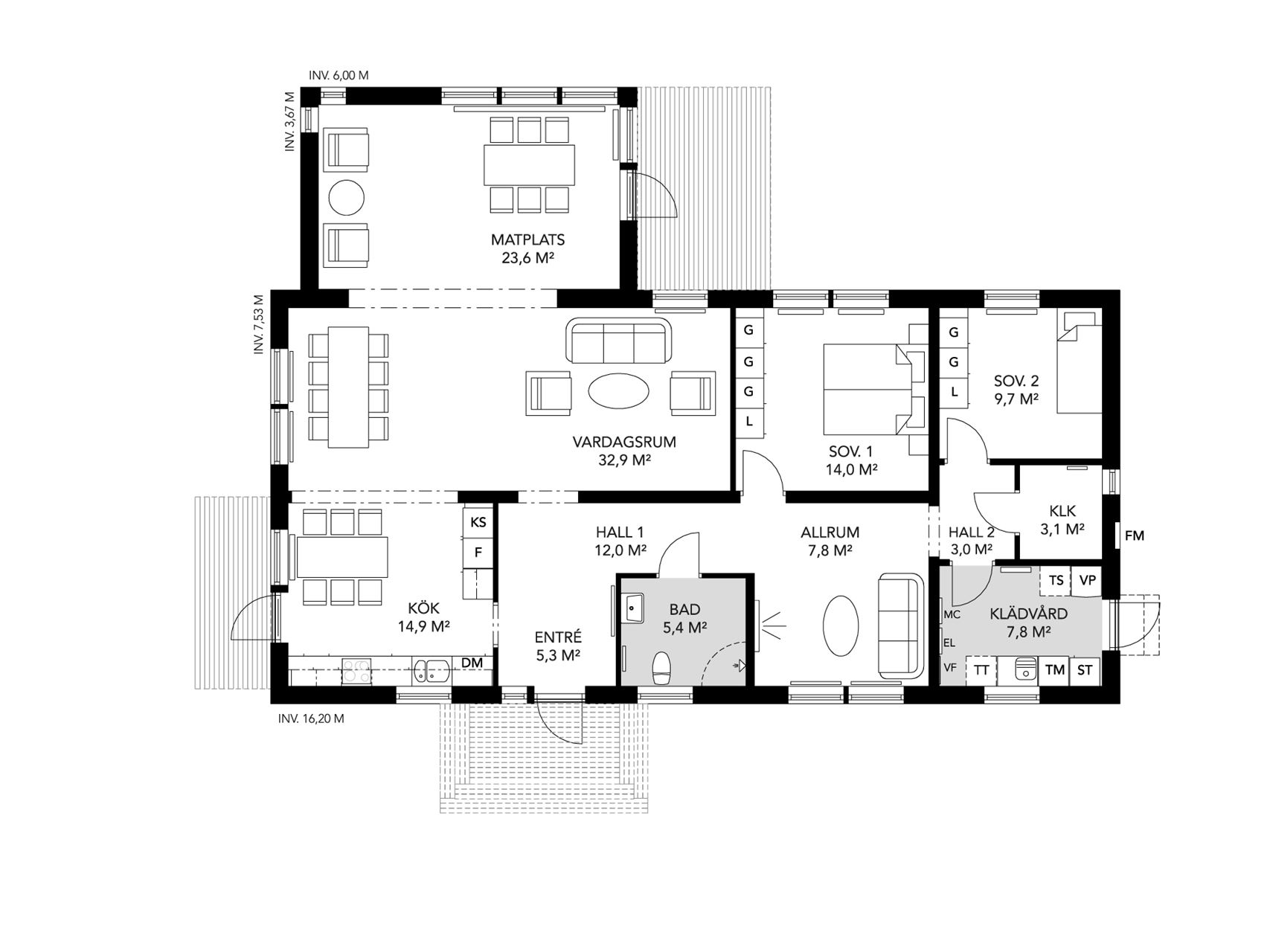
Planlösning 2 av 5

Extra WC

Välj extra WC istället för klädkammare.

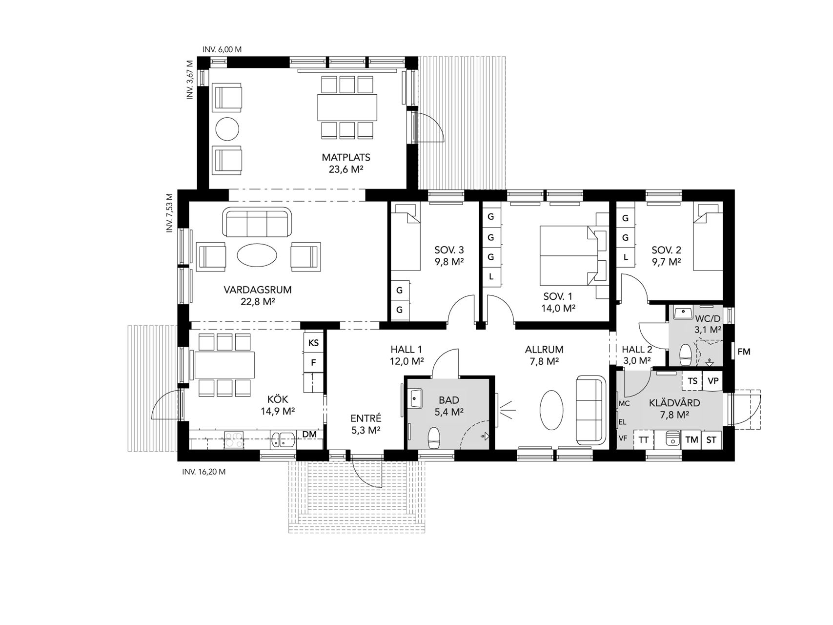
Planlösning 3 av 5

Stort vardagsrum

Välj extra stort vardagsrum.

Planlösning 4 av 5

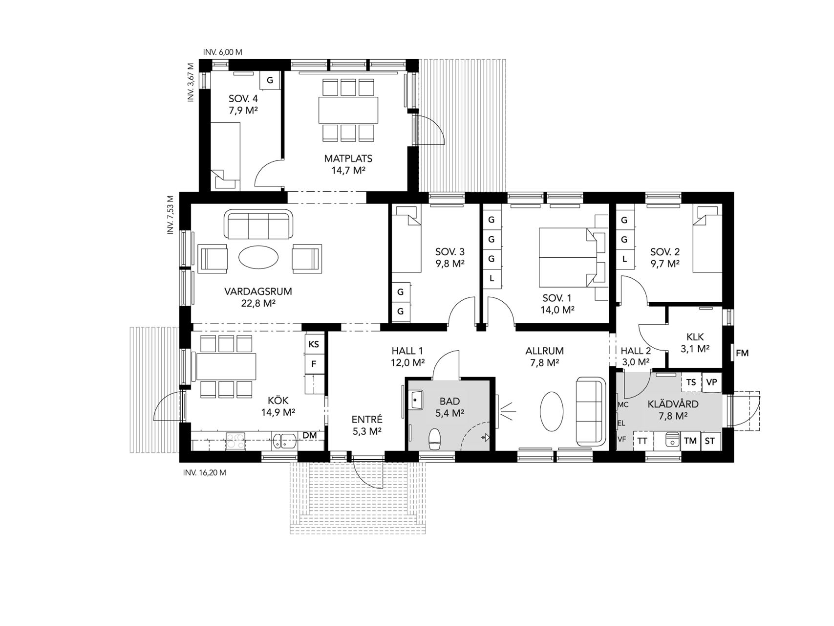
Fyra sovrum

Välj ett extra sovrum.

Planlösning 5 av 5

Stort vardagsrum och tre sovrum

Välj ett stort vardagsrum och tre sovrum.

Fler planlösningar

1 av 5

Standard

2 av 5

Extra WC

3 av 5

Stort vardagsrum

4 av 5

Fyra sovrum

5 av 5

Stort vardagsrum och tre sovrum

Fördelar

Stor klädvård med egen entré

Det här huset har en stor klädvård som du når direkt via en av ingångarna vilket blir perfekt för sandiga badkläder eller blöta vinterkläder.

Kök och vardagsrum i öppet samband

Med kök och vardagsrum i anslutning till varandra skapas stora umgängsytor för sociala tillställningar i ditt hus. Här finns plats att trivas!

Liknande hus

Frågor och svar

Hej!

Berätta för oss i vilken kommun du vill bygga. Vi kommer anpassa webbplatsen till din valda kommun för att förenkla för dig.