Fritidshus

Villa Vrigstad

Allt om detta hus

Prisindikation

från 1 689 000 kr

  • Bygghöjd 3,5 m
  • Byggarea 94 m2
  • Boarea 81 m2 — Med inredd övervåning 134 m2
Se alla planlösningar
Bygg online

Låt ditt drömhus ta form

Testa Husbyggaren

Bygg online

Bygg Villa Vrigstad som fritidshus

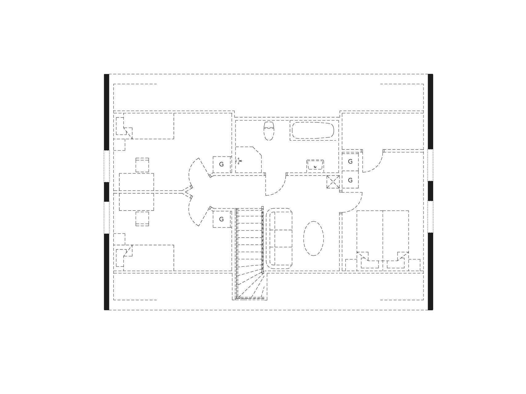
På undervåningen är det här huset rymligt med separat kök och stort vardagsrum. Men med övervåningens möjligheter kan det båda skapa flera sovrum och utsikt över miljön där du bygger ditt fritidshus.

I Villa Vrigstad leder entrén in till både kök och vardagsrum. Sovrummet, där det finns gott om både svängrum och plats för förvaring, ligger mer avskilt i samma del av huset som badrummet. Om behoven ändras finns möjligheter att skapa ända upp till sju rum och kök genom att inreda övervåningen.

I förslaget för övernvåningens planlösning nedan har vi ritat in tre sovrum, men på övervåningen har du själv möjlighet att skapa den planlösning du behöver för att maximera antalet sängplatser i ditt fritidshus. 

Fritidshus från SmålandsVillan

Det här huset är ett av våra mest populära hus att bygga som ett permanentboende, men här vill vi också ge dig inspiration för att bygga det här huset som fritidshus. Med anpassningar inom ramen för SmålandsVillans erbjudande kan du få ett prisvärt hus med hög kvalitet och låg energiförbrukning. Kontakta oss nu om du vill bygga fritidshus tillsammans med oss på SmålandsVillan!

Kontakta oss

Vill du veta mer om det här huset?

Hur vill du att vi kontaktar dig?

Planlösningar

Planlösning 1 av 2

Standard

Planlösning 2 av 2

Övervåningsförslag

Huset levereras med oinredd övervåning. Detta är ett förslag på hur du kan göra.

Fler planlösningar

1 av 2

Standard

2 av 2

Övervåningsförslag

Fördelar

Stor klädvård med egen entré

Det här huset har en stor klädvård som du når direkt via en av ingångarna vilket blir perfekt för sandiga badkläder eller blöta vinterkläder.

Kök och vardagsrum i öppet samband

Med kök och vardagsrum i anslutning till varandra skapas stora umgängsytor för sociala tillställningar i ditt hus. Här finns plats att trivas!

Frågor och svar

Hej!

Berätta för oss i vilken kommun du vill bygga. Vi kommer anpassa webbplatsen till din valda kommun för att förenkla för dig.