Enplanshus

Villa Fredriksdal

Allt om detta hus
  • Bygghöjd 3,5 m
  • Byggarea 139 m2
  • Boarea 122 m2
Se alla planlösningar
Bygg online

Låt ditt drömhus ta form

Testa Husbyggaren

Bygg online

Populärt 1-planshus med många möjligheter

Favoriten Villa Fredriksdal bjuder på trivsamma och välplanerade kvadratmetrar i form av ett ljust, lättskött 1-planshus med rum för många olika husdrömmar. Här kan du nämligen välja mellan fem olika planlösningar.

Villa Fredriksdal stoltserar både med egen barn- respektive vuxenavdelning, och med sociala ytor för både vardag och fest. Redan i entrén välkomnas du av ljuset, som kännetecknar hela huset. Rakt fram väntar vardagsrummet som är fint redan från början, och som kan bli oerhört maffigt om tre sovrum räcker för er. Här serveras också ett riktigt kök med plats för mysiga vardagsmiddagar och god kontakt med vardagsrummet via bardisken.

Oavsett vilken planlösning ni faller för ligger husets mer privata delar på varsin sida av det sociala mittpartiet. På ena sidan, ostört lugn i ett luftigt sovrum, granne med wc med dusch och tvättstugan med praktisk groventré. På den andra, två eller tre sovrum och ett allrum eller arbetsrum. Som sagt, Villa Fredriksdal ger rum för många olika husdrömmar.

Planlösningar

Planlösning 1 av 6

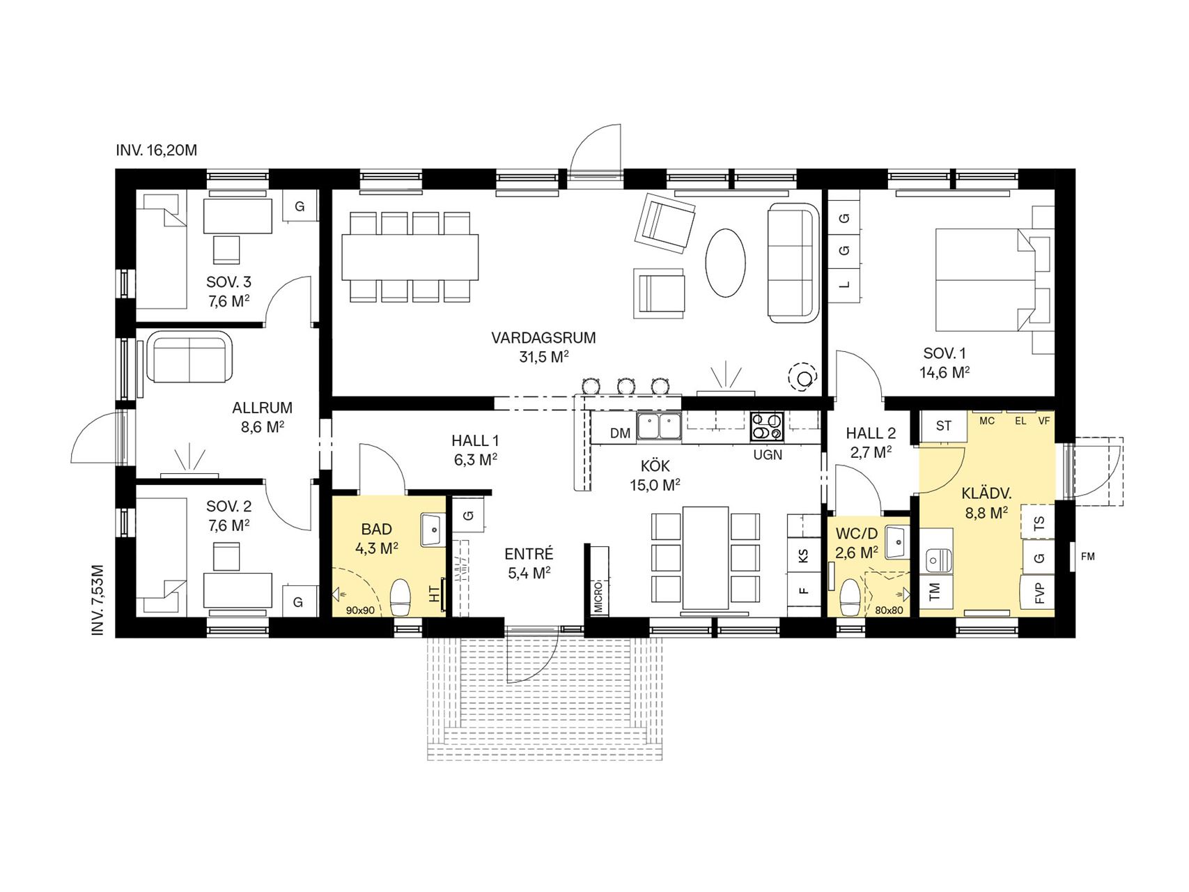
Standard: Välplanerad, ljus och lättskött

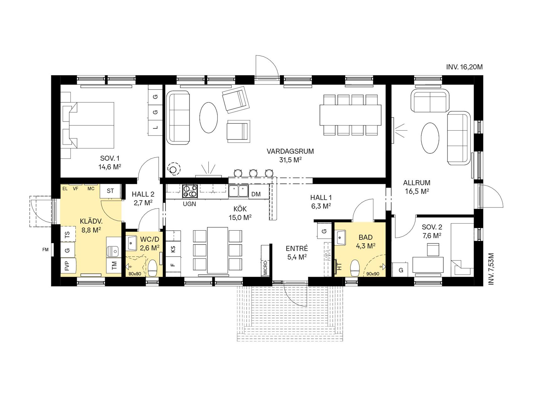
I vår standardplanlösning ligger 3 av sovrummen invid varandra i husets vänstra del, både med eget allrum och badrum tätt intill.

Planlösning 2 av 6

Stort vardagsrum: Som gjort för att mötas i mitten

Väggen mellan sovrum 4 och vardagsrummet tas bort och skapar ett ännu större vardagsrum. Den stora ytan flyter samman med köket och blir en social plats för hela familjen – och många vänner.

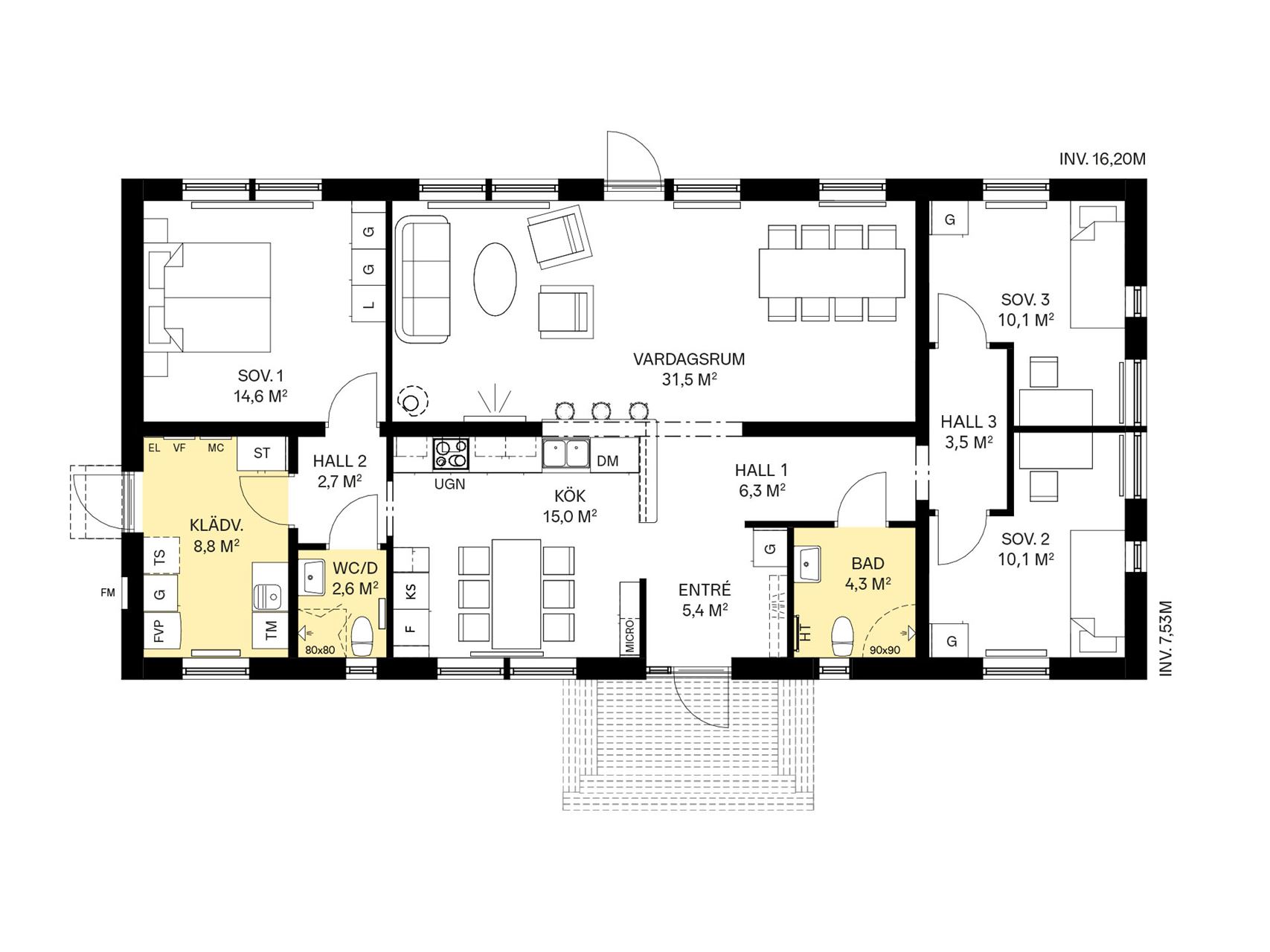
Planlösning 3 av 6

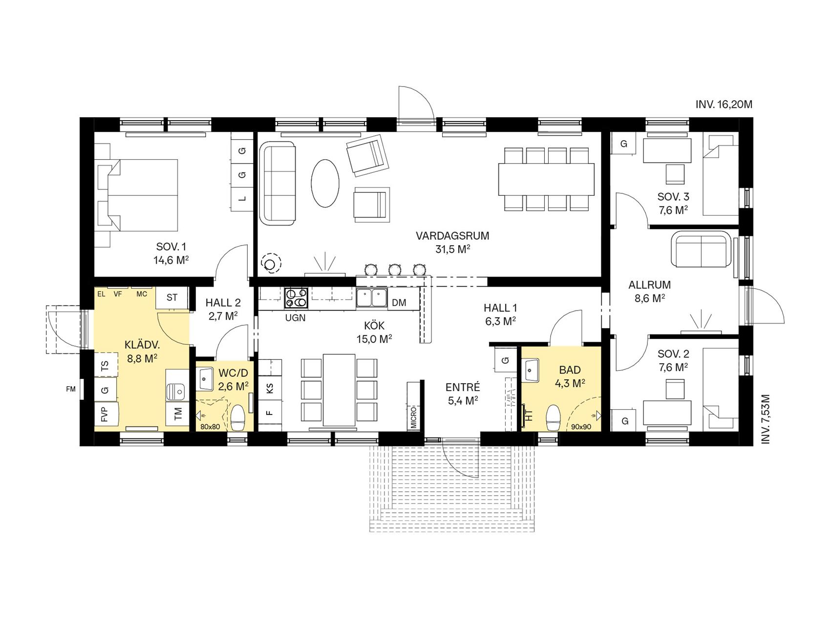
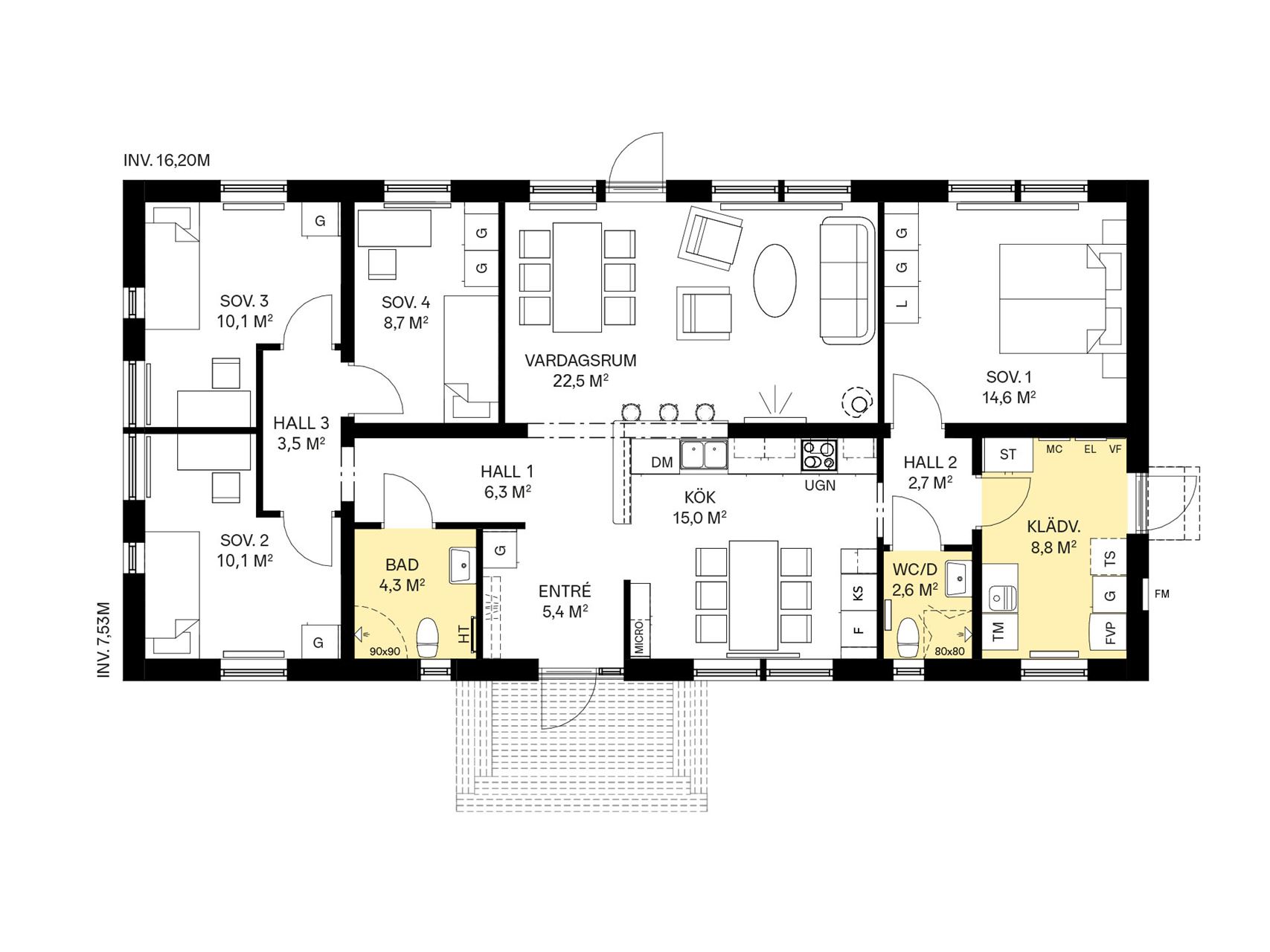
Fyra sovrum: Mer space för större barn

Till skillnad från standardutförandet har allrummet slopats till förmån för mer yta i sovrum 2 & 3. Vill du ge de större barnen, eller gästen, mer eget space? Här är planlösningen för dig.

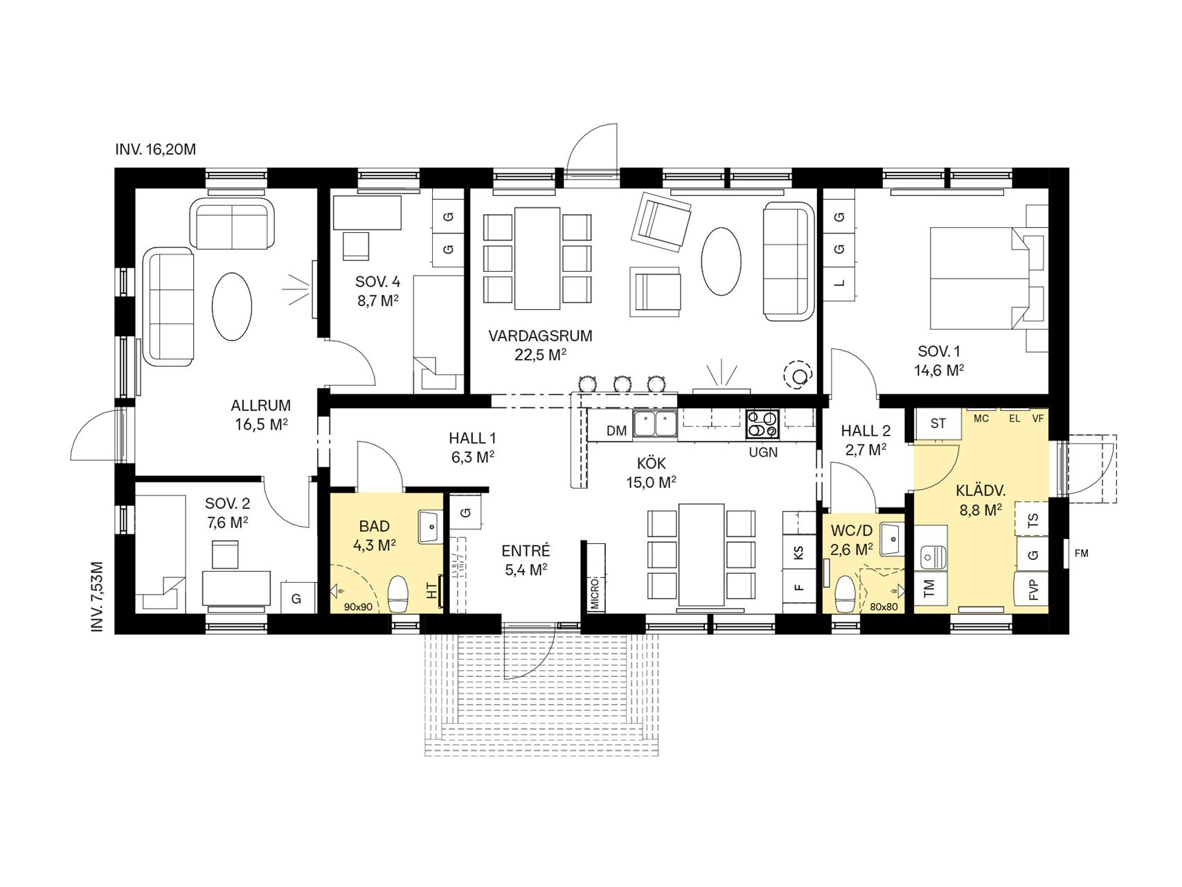
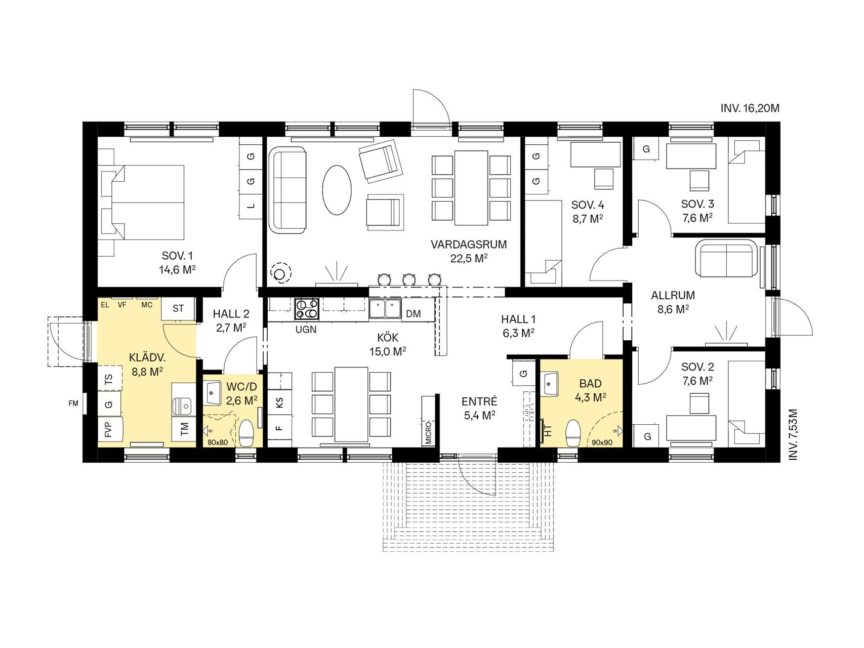
Planlösning 4 av 6

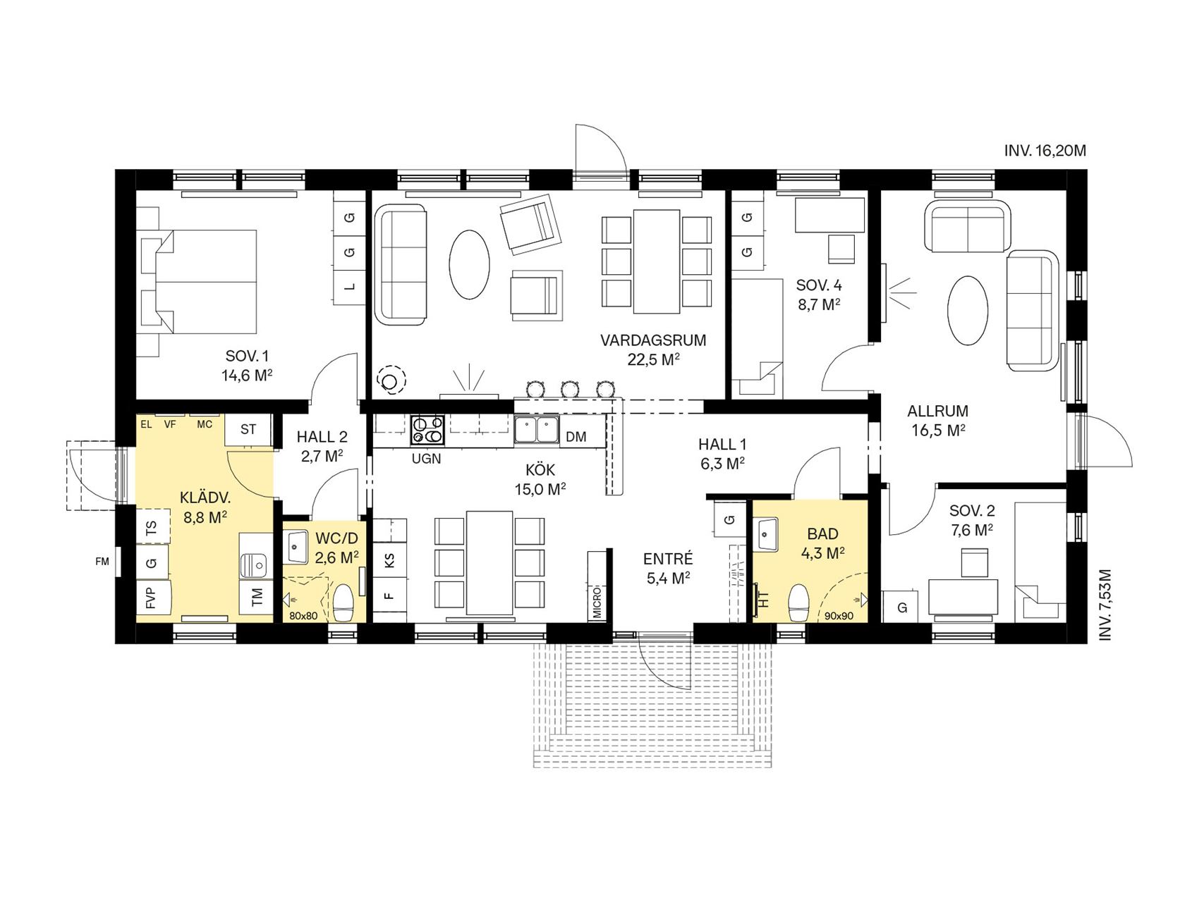
Stort allrum och tre sovrum: Gemensam plats för barnen

Här har sovrum 3 fått ge plats för ett större, avsides allrum. Kanske som rymligt tv-rum för barnen och deras kompisar? Eller för den som vill smita undan en stund.

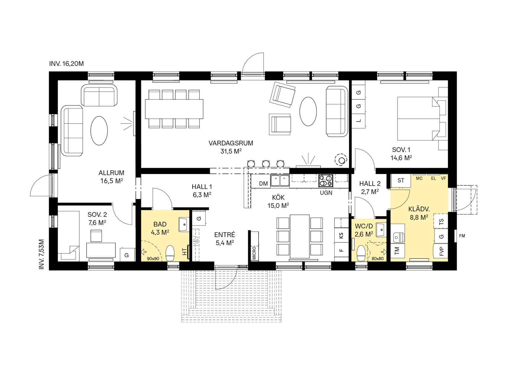
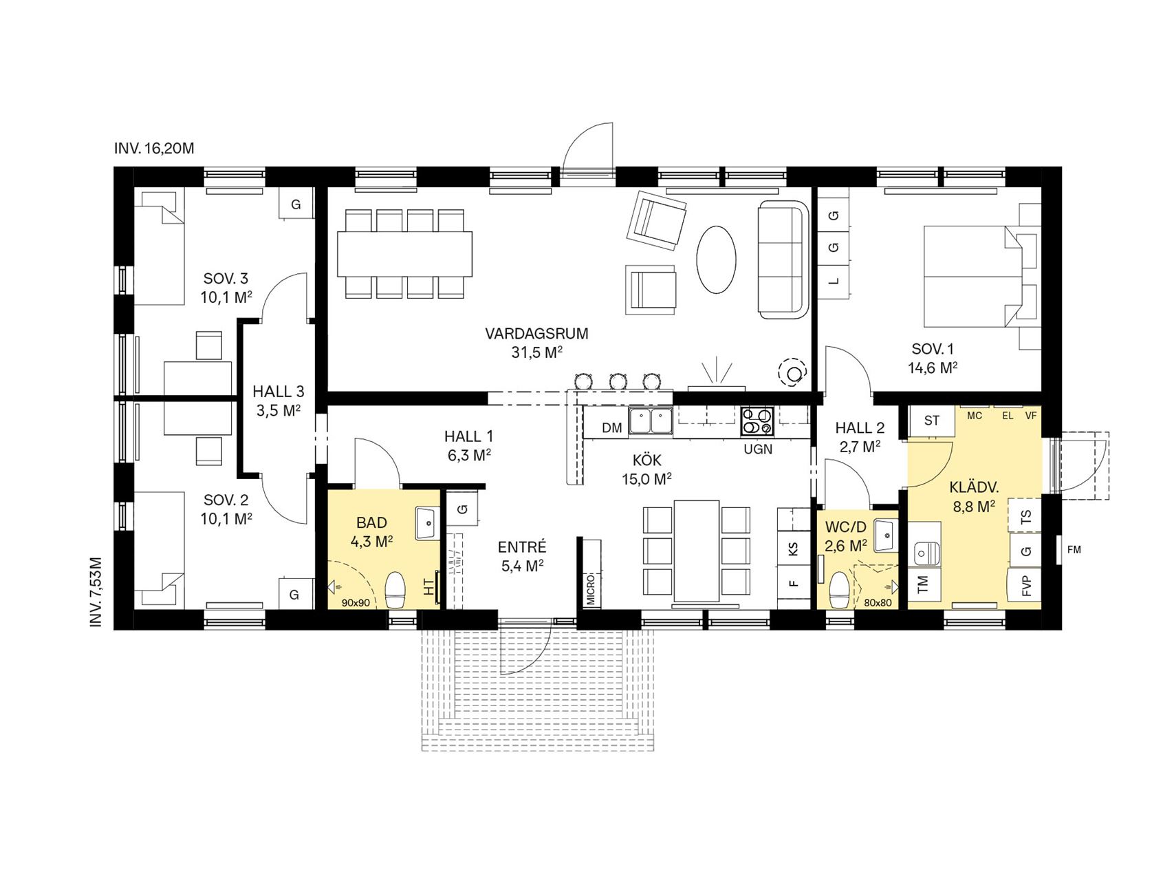
Planlösning 5 av 6

Två sovrum och stort vardagsrum: Supersocialt

Gillar ni det sociala livet och klarar er med två sovrum? Då kan detta vara planlösningen för er. Här får du nämligen både extra stort vardagsrum, och ett större allrum.

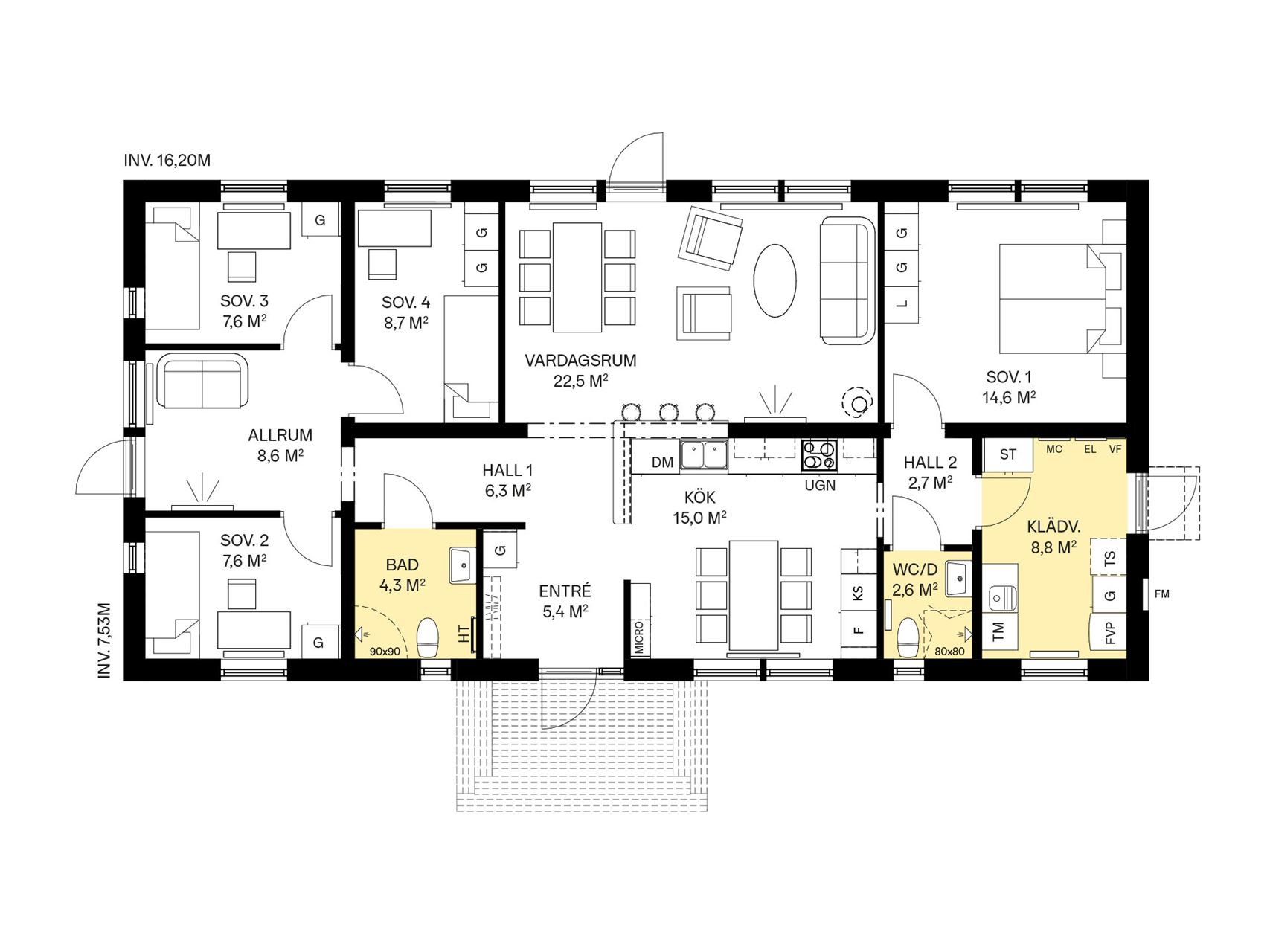
Planlösning 6 av 6

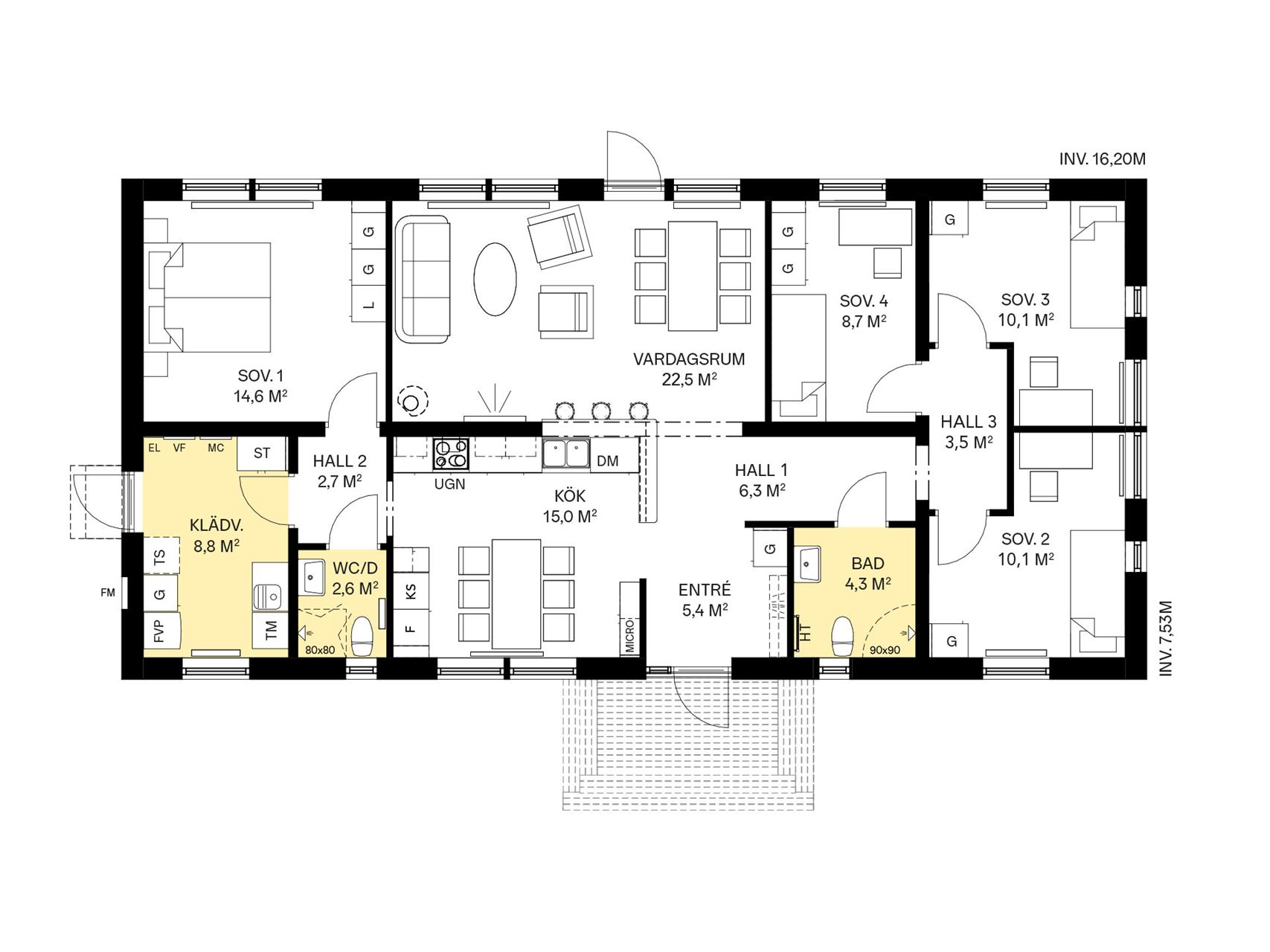
Stort vardagsrum och tre sovrum: Både socialt och privat

I det här fina alternativet blir de två sovrummen i barnavdelningen lite mer generösa – plus att du får ett extra stort vardagsrum. Bästa av båda världarna?

Gillar du denna planlösning?

Den går att få i flera av våra andra husmodeller!

Fler planlösningar

1 av 6

Standard: Välplanerad, ljus och lättskött

2 av 6

Stort vardagsrum: Som gjort för att mötas i mitten

3 av 6

Fyra sovrum: Mer space för större barn

4 av 6

Stort allrum och tre sovrum: Gemensam plats för barnen

5 av 6

Två sovrum och stort vardagsrum: Supersocialt

6 av 6

Stort vardagsrum och tre sovrum: Både socialt och privat

Visningar

Villa Fredriksdal

Visningshus

onsdag 25 feb

16:30-17:30

Björnbärsgatan 3, Sala, Västerås

Läs mer

Villa Fredriksdal

Visningshus

Boka din egen tid

Björnbärsgatan 3, Sala, Västerås

Boka tid
Hans Andréasson Säljare, Smålandsvillan

Nyfiken och vill veta mer?

Få inspiration!

Utforska alla våra husmodeller bekvämt hemma i soffan. I brevlådan inom några dagar!

Vad kostar det?

Vad ditt hus kostar beror på vad och var du vill bygga. Hör av dig, så fixar vi en detaljerad kalkyl för just ditt drömhus.

Beställ vår huskatalog

På brevlådan inom några dagar

Hör av dig till oss!

Vill du bygga nytt?

Hur vill du att vi kontaktar dig?

Vad som ingår?

Istället för att erbjuda en uppsjö tillval har vi redan från början valt kvalitet från ledande leverantörer för att utrusta alla hus.

Läs mer

Uppskattad energianvändning

En nybyggd Smålandsvilla är en energisnål villa. Här kan du få ett hum om energiförbrukningen i ditt drömhus just där du tänker bygga. Fyll bara i din kommun.

När du väljer en plats du vill bygga på så anpassar vi webbplatsen för att ge dig mer relevant information. Du kan byta plats när som helst.

Energianvändning

(värme & varmvatten)

4 100

kWh/år
Malmö (grundval)

Total energi­användning*

(inklusive hushållsel)

7 800

kWh/år
Energiklass

B

Bygg nytt och bo billigare

Ja, det är sant. Du kan faktiskt bo billigare i ett alldeles nybyggt hus än i ett begagnat. Trots dagens räntor och elpriser.

Spara mer med solceller

När drömhuset ska bli ditt finns det mycket man villhöver. Men det finns ett tillval som lönar sig lite extra: solceller.

Vad är driftskostnader, egentligen?

När man ska bygga eller köpa hus får man höra att driftskostnaderna ska vara låga – men vad betyder det? Låt oss förklara.

122 välplanerade kvadratmeter!
Villa Fredriksdal
Barn tar på sig stora inneskor i nybyggt hus
Kvinna arbetar vid laptop

Ingen anledning till oro

Oavsett vad som händer utanför dörren kan vi lova dig en trygg resa hela vägen till ditt nya hem. Här berättar vi varför.

Läs mer

Hitta tomt att bygga huset på

Sök på t.ex. adress, område, stad, kommun, län, projekt-/objektnamn

Bli OBOS-medlem

Vi på SmålandsVillan är en del av OBOS, en av nordens största bostadsutvecklare. Som OBOS-medlem får du förtur till våra bostäder, tomter och flyttklara hus. Inte nog med förtur, så får du även fina förmåner för vardagsliv och vardagslyx!

Läs mer

Frågor och svar

Hej!

Berätta för oss i vilken kommun du vill bygga. Vi kommer anpassa webbplatsen till din valda kommun för att förenkla för dig.