Förhöjt väggliv

Villa Vimmerby

Allt om detta hus
  • Bygghöjd 4,54 m
  • Byggarea 94 m2
  • Boarea 81 m2 — Med inredd övervåning 141 m2
Se alla planlösningar
Bygg online

Låt ditt drömhus ta form

Testa Husbyggaren

Bygg online

Mångsidigt hus med förhöjt väggliv

I charmiga Villa Vimmerby flyttar du in på en otroligt trivsam entrévåning och kan sedan gasa upp till hela sju rum och kök när du inreder övervåningen. Och tack vare förhöjt väggliv får du både njuta av gott om golvyta och charmigt snedtak. Hur bra?

Villa Vimmerby är dessutom en äkta huskameleont som trivs i flera olika stilar. Genom val av färgsättning och detaljer kan du antingen skapa din egen lantliga dröm – eller flörta hejdlöst med den ikoniska New England-stilen. Inuti väntar superfint sociala ytor – men här serveras också ett kök i sin egen rätt, med plats för att diskutera dagens händelser vid matbordet. Lite vid sidan av det sociala centrumet väntar ett ljuvligt sovrum. Och granne med det: husets praktiska guldkorn i form av badrum och klädvårdsrum med groventré.

Kanske noterade du också trappan till övervåningen? Eller, som vi brukar säga, platsen där dina drömmar slår in. Eftersom Villa Vimmerby är ett hus med förhöjt väggliv får du här njuta av den delikata kombinationen mysigt snedtak och gott om funktionell golvyta. Här kan du till exempel få rum med ytterligare tre sovrum, badrum, kontor och ett allrum – ja, Villa Vimmerby kan faktiskt rymma hela sju rum och kök. Men det där får, som sagt, dina drömmar bestämma. Övervåningen inreder du när – och hur – du själv vill.

Huset går endast att få med liggande panel.

Planlösningar

Planlösning 1 av 2

Standard: Socialt och modernt

I Villa Vimmerby är det lätt att umgås över rumsgränserna. Entré, kök och vardagsrum flyter samman och bildar en social yta för familj och vänner.

Planlösning 2 av 2

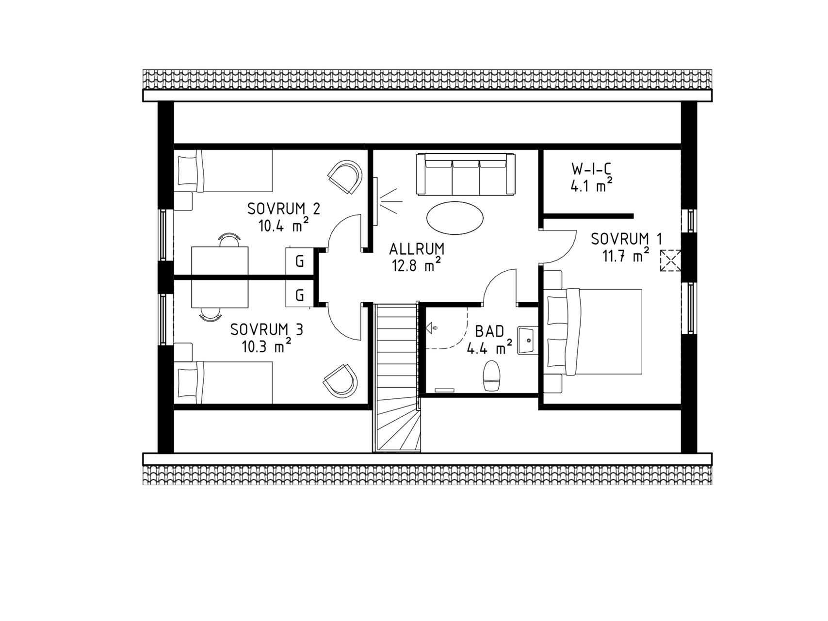
Övervåningsförslag: Få upp till 7 rum och kök!

Övervåningens förhöjda väggliv ger både vackra snedtak och generös boyta. Förslaget visar tre sovrum, ett allrum, ett kontor och badrum.

Gillar du denna planlösning?

Den går att få i flera av våra andra husmodeller!

Fler planlösningar

1 av 2

Standard: Socialt och modernt

2 av 2

Övervåningsförslag: Få upp till 7 rum och kök!

Joakim Oldenburg Säljare, Smålandsvillan

Nyfiken och vill veta mer?

Få inspiration!

Utforska alla våra husmodeller bekvämt hemma i soffan. I brevlådan inom några dagar!

Vad kostar det?

Vad ditt hus kostar beror på vad och var du vill bygga. Hör av dig, så fixar vi en detaljerad kalkyl för just ditt drömhus.

Beställ vår huskatalog

På brevlådan inom några dagar

Hör av dig till oss!

Vill du bygga nytt?

Hur vill du att vi kontaktar dig?

Vad som ingår?

Istället för att erbjuda en uppsjö tillval har vi redan från början valt kvalitet från ledande leverantörer för att utrusta alla hus.

Läs mer

Bygg online

Se priset direkt

I vår husbyggare kan du komponera ditt drömboende med några enkla klick och se priset direkt. 

Till husbyggaren

Uppskattad energianvändning

En nybyggd Smålandsvilla är en energisnål villa. Här kan du få ett hum om energiförbrukningen i ditt drömhus just där du tänker bygga. Fyll bara i din kommun.

När du väljer en plats du vill bygga på så anpassar vi webbplatsen för att ge dig mer relevant information. Du kan byta plats när som helst.

Energianvändning

(värme & varmvatten)

3 000

kWh/år
Malmö (grundval)

Total energi­användning*

(inklusive hushållsel)

5 400

kWh/år
Energiklass

C

Bygg nytt och bo billigare

Ja, det är sant. Du kan faktiskt bo billigare i ett alldeles nybyggt hus än i ett begagnat. Trots dagens räntor och elpriser.

Spara mer med solceller

När drömhuset ska bli ditt finns det mycket man villhöver. Men det finns ett tillval som lönar sig lite extra: solceller.

Vad är driftskostnader, egentligen?

När man ska bygga eller köpa hus får man höra att driftskostnaderna ska vara låga – men vad betyder det? Låt oss förklara.

Man testar husbyggare i mobilen
Med det förhöjda vägglivet ökar möjligheterna en trappa upp. I Villa Vimmerby får du större golvyta och högre till tak!
Pappa målar pojkes naglar i sängen

Vårt trygghetspaket

Oavsett vad som händer utanför dörren kan vi lova dig en trygg resa hela vägen till ditt nya hem. Här berättar vi varför.

Läs mer

Hitta tomt att bygga huset på

Sök på t.ex. adress, område, stad, kommun, län, projekt-/objektnamn

Bli OBOS-medlem

Vi på SmålandsVillan är en del av OBOS, en av nordens största bostadsutvecklare. Som OBOS-medlem får du förtur till våra bostäder, tomter och flyttklara hus. Inte nog med förtur, så får du även fina förmåner för vardagsliv och vardagslyx!

Läs mer

Frågor och svar

Hej!

Berätta för oss i vilken kommun du vill bygga. Vi kommer anpassa webbplatsen till din valda kommun för att förenkla för dig.