1,5 planshus Villa Nybro från Smålandsvillan

1,5-planshus

Villa Nybro

Allt om detta hus

Prisindikation

Pris från

2 206 500 kr

Pris inflyttningsklart från

2 253 500 kr

  • Bygghöjd 3,5 m
  • Byggarea 137 m2
  • Boarea 119 m2 — Med inredd övervåning 195 m2
Se alla planlösningar
Bygg online

Låt ditt drömhus ta form

Testa Husbyggaren

Bygg online

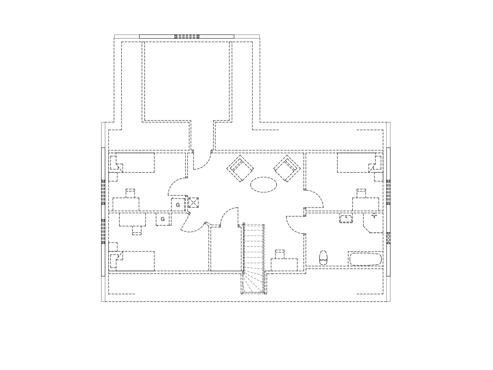
Storartat 1,5-planshus i vinkel

Som standard sätter Villa Nybro livsnjuteriet i fokus med sin generösa öppna planlösning för kök, vardagsrum och matplats – men redan från start bjuder detta vackra 1,5-planshus på flera fiffiga planlösningsalternativ. Och när du sedan inreder övervåningen kan du få upp till 9 rum och kök!

Villa Nybro uppfyller de flesta önskningar. Tack vare den fina vinkeldelen får du nämligen en storartad öppen planlösning för kök, vardagsrum och matplats. Dessutom med flera utgångar till din trädgård – eller kanske altan? Som standard väntar två sovrum lite vid sidan av händelsernas centrum, i gott sällskap av badrum och klädvårdsrum – med groventré, hurra för det! Men Villa Nybro har fler ess i rockärmen att erbjuda.

Vill du ha ett superstort vardagsrum kan du välja bort det mindre sovrummet, eller flytta det till vinkeldelen. Du kan också göra om det sovrummet till en spektakulär walk-in closet. Ja, du hör, här finns storartade möjligheter redan från start. Och när du sedan sätter tänderna i övervåningen kan du garanterat uppfylla ännu fler drömmar. Till exempel kan du få rum med ytterligare fyra sovrum, badrum och ett maffigt allrum – du har då en boyta på 195 m2. Storartade möjligheter, med andra ord.

Planlösningar

Planlösning 1 av 4

Standard: Vacker och välplanerad villa

Kök, vardagsrum och den vackra vinkeldelen utgör husets vänstra halva – till höger ligger sovrum, badrum och klädvård samlade. Välplanerat för alla ändamål!

Planlösning 2 av 4

Stort vardagsrum: Svängrum för många

I det här alternativet väljer du bort sovrum 2 för ett stort vardagsrum – nästan 33 kvm! Här kan ni umgås i mängder utan att trängas.

Planlösning 3 av 4

Walk-in-closet i sovrummet: Rum för alla tillfällen

Sovrum 2 ändrar skepnad och blir en plats för kläder och förvaring. En lyxig walk-in-closet med ingång från det stora sovrummet.

Planlösning 4 av 4

Övervåningsförslag: En våning för allt

Förslaget visar fyra sovrum, ett allrum och ett badrum – men möjligheterna är många! Den inredningsbara övervåningen är din att forma fritt.

Gillar du denna planlösning?

Den går att få i flera av våra andra husmodeller!

Fler planlösningar

1 av 4

Standard: Vacker och välplanerad villa

2 av 4

Stort vardagsrum: Svängrum för många

3 av 4

Walk-in-closet i sovrummet: Rum för alla tillfällen

4 av 4

Övervåningsförslag: En våning för allt

Karin Hjerpe Säljare, Smålandsvillan

Nyfiken och vill veta mer?

Få inspiration!

Utforska alla våra husmodeller bekvämt hemma i soffan. I brevlådan inom några dagar!

Vad kostar det?

Vad ditt hus kostar beror på vad och var du vill bygga. Hör av dig, så fixar vi en detaljerad kalkyl för just ditt drömhus.

Beställ vår huskatalog

På brevlådan inom några dagar

Hör av dig till oss!

Vill du bygga nytt?

Hur vill du att vi kontaktar dig?

Vad som ingår?

Istället för att erbjuda en uppsjö tillval har vi redan från början valt kvalitet från ledande leverantörer för att utrusta alla hus.

Läs mer

Bygg online

Se priset direkt

I vår husbyggare kan du komponera ditt drömboende med några enkla klick och se priset direkt. 

Till husbyggaren

Uppskattad energianvändning

En nybyggd Smålandsvilla är en energisnål villa. Här kan du få ett hum om energiförbrukningen i ditt drömhus just där du tänker bygga. Fyll bara i din kommun.

När du väljer en plats du vill bygga på så anpassar vi webbplatsen för att ge dig mer relevant information. Du kan byta plats när som helst.

Energianvändning

(värme & varmvatten)

4 100

kWh/år
Malmö (grundval)

Total energi­användning*

(inklusive hushållsel)

7 700

kWh/år
Energiklass

C

Bygg nytt och bo billigare

Ja, det är sant. Du kan faktiskt bo billigare i ett alldeles nybyggt hus än i ett begagnat. Trots dagens räntor och elpriser.

Spara mer med solceller

När drömhuset ska bli ditt finns det mycket man villhöver. Men det finns ett tillval som lönar sig lite extra: solceller.

Vad är driftskostnader, egentligen?

När man ska bygga eller köpa hus får man höra att driftskostnaderna ska vara låga – men vad betyder det? Låt oss förklara.

Barn och hund leker på golvet i nybyggt hus
Flytta in i en Villa Nybro för livet är som bäst när man bor i villa!

Vårt trygghetspaket

Oavsett vad som händer utanför dörren kan vi lova dig en trygg resa hela vägen till ditt nya hem. Här berättar vi varför.

Läs mer

Hitta tomt att bygga huset på

Sök på t.ex. adress, område, stad, kommun, län, projekt-/objektnamn

Bli OBOS-medlem

Vi på SmålandsVillan är en del av OBOS, en av nordens största bostadsutvecklare. Som OBOS-medlem får du förtur till våra bostäder, tomter och flyttklara hus. Inte nog med förtur, så får du även fina förmåner för vardagsliv och vardagslyx!

Läs mer

Frågor och svar

Hej!

Berätta för oss i vilken kommun du vill bygga. Vi kommer anpassa webbplatsen till din valda kommun för att förenkla för dig.